Paso 2: diseño













TALLER DE DISEÑO
El proceso de diseño comenzó con un taller de diseño rápido, dos semanas en el estudio de movilidad de prototipos. Los estudiantes trabajaron en equipos de cuatro para testar ideas y estrategias materiales como una manera de establecer una dirección de diseño para el semestre. Este ejercicio se pretende generar una multitud de ideas para su consideración y evaluación por toda la clase. El resultado final no era un sistema completamente desarrollado, sino más bien una idea convincente diseño acompañado de análisis programático y ensayos de materiales que en conjunto constituyen suficiente prueba de concepto. Los equipos pidieron hasta centrarse en un único enfoque material de la estructura subyacente del diseño.
El consenso de la Asamblea fue desarrollar un sistema de estructuras modulares que podrían ambos acto independientemente y juntos. El objetivo era tener un sistema que podría cerrar por la noche (por motivos de seguridad durante el festival) y también funciona como un sistema reconfigurable de módulos que podría acomodar a un número de diversas funciones. Este reconfigurabilidad (tanto para el uso del Festival y para uso futuro en el CCA) se convirtió en el concepto de conducción del proyecto.
DESARROLLO DEL DISEÑO
Tras la Asamblea, los estudiantes dividieron en tres equipos para desarrollar los aspectos principales del proyecto: estructura, revestimiento y sistema de plug-in. Dado el diseño corto y tiempo de construcción, cada equipo produjo un número de prototipos iterativos de 1:1 para testar ideas a escala completa.
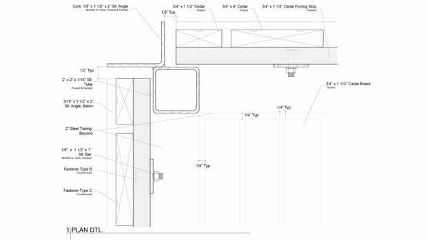
La restricción principal condicionante del diseño de la estructura era un tamaño de los módulos para caber dentro de un camión de alquiler con una puerta de ascensor de tamaño limitado. El estudio fue a través de un número de iteraciones que estudia la relación entre la forma del módulo y su comportamiento de mosaico. El esquema final: angular en plan y sección — da el módulo de una presencia espacial dinámica tanto cuando está parado individualmente y anidado junto con su gemelo. Un modelo digital integrado permite a los estudiantes resolver el complejo ingletes en esquinas del marco.
Tableros de cedro fueron seleccionados como el material de revestimiento para su durabilidad y resistencia a la intemperie. El equipo de diseño produjo un número de iteraciones y prototipos a escala real para probar diferentes estrategias para incluir patrones dentro del revestimiento de cedro. El estudio estaba interesado en desarrollar una estrategia gráfica para el módulo que produciría múltiples lecturas en múltiples escalas. El esquema final utiliza patrones de enrutado en las tablas de cedro para producir un texto camuflado "CCA" que se convierte en legibles desde una distancia, pero sigue siendo totalmente abstracta de cerca.
El sistema fue diseñado para proporcionar la máxima flexibilidad y reconfigurabilidad en el tiempo. Los miembros estándar unistrut se montan a la estructura de acero, proporcionando una armadura universal que se puede conectar cualquier cantidad de plugins de montaje en. El equipo de diseño y construcción fabrica una serie de bandejas con tapas desmontables que doble como taburetes, que resultó muy útil durante el festival.