Llevar silla y mesa para niños (1 / 5 paso)

Paso 1: Diseño de Plan

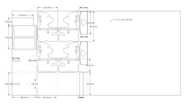
Todas las piezas encajarán en poco menos de la mitad de un 4 x 8' pedazo de madera contrachapada (* ver el último paso si no utiliza madera contrachapada)
También he subido una versión EPS del plan de diseño y una versión 3D de Sketchup, que puede descargarse desde la primera página de este Instructable.

-Siguiente paso, cómo encaja.

Artículos Relacionados

Poner la mesa para las fiestas

Poner la mesa para las fiestas

hicimos un "simulacro configurar" de nuestra mesa para la Navidad este año.Todo sobre la mesa, excepto las placas de Navidad, vino en tiendas de segunda mano. Pasé alrededor de 11 dólares para poner todo junto. Las placas fueron dados a mí por m
Banco Sierra de mesa para un torno de madera

Banco Sierra de mesa para un torno de madera

se fascinó con Tornos de madera cuando estaba en secundaria. Ahorré mi dinero hasta que pude comprar mi propio torno. Pronto deseé una sierra de banco o mesa, también. Decidí colocar una hoja de sierra para mi torno y hacer una mesa para él. La unida
Silla de ruedas para perros

Silla de ruedas para perros

basado en un diseño (¡ gracias joelsprayberry!) Decidí hacer una silla de ruedas para mi pug (Bailey). Sus patas traseras poco a poco están volviendo inutilizables. En lugar de ir con un diseño metálico, que opté por usar tubo de PVC de 1/2" para el
Adaptable para sillas de ruedas para perros discapacitados

Adaptable para sillas de ruedas para perros discapacitados

Hace unos meses descubrimos a Luisa, un perrito con discapacidad que nació sin patas delanteras en el sitio web de una organización de protección animal (www.pro-tier.de) y decidió construir una silla de ruedas impreso en 3D para ella. Mientras tanto
Guía de principiantes: sillas y mesa en un ipad 3d

Guía de principiantes: sillas y mesa en un ipad 3d

este tutorial explica cómo hacer una sencilla mesa y sillas (para una casa de muñecas) usando un ipad y una aplicación gratuita (criatura 123D).Se pretende ser una guía sencilla para que informática no debe ser un obstáculo para la creación.Paso 1: D
Bajo manejo de cables en mesa para computadora de escritorio

Bajo manejo de cables en mesa para computadora de escritorio

odio los cables. Tengo muchos de ellos. Actualmente tengo una cruda serie de cabeza bridas de montaje y velcro para su gestión. Esto era engorroso y feo. Longitud de los cables tiene demasiada holgura y colgar alrededor. Cuando quise mover o eliminar
Trona de mesa para los gemelos

Trona de mesa para los gemelos

mientras buscaba una alternativa a tener dos bebes, me topé con este fantástico programa de instalación.  En el original, sacraficed una mesa, en mi caso he construido una hoja especial para la tabla en su lugar.  El original puede encontrarse aquí:
Silla y mesa

Silla y mesa

Para un proyecto de tecnología, tal vez le diseño 123d y al azar de su estudiante, educado, profesor de tecnología altamente elogiado, que debe ya han enseñado técnicas de cómo usar diseño 123d pida crear una mesa y una silla. Este un tutorial rápido
Joystick de gesto, voz, base silla de ruedas para personas discapacitadas.

Joystick de gesto, voz, base silla de ruedas para personas discapacitadas.

Sillas de ruedas electrónicas son dispositivos importantes de locomoción para personas con discapacidad y mayores, y son cada vez más importantes en nuestra sociedad de envejecimiento. Por lo tanto más seguros y más cómodos "inteligentes sillas de ru
Convertir una tabla a un mesa para cambiar pañales del bebé

Convertir una tabla a un mesa para cambiar pañales del bebé

nuestra hija nació hace unos días.Pensamos que una simple tabla servirá a los efectos de una mesa de cambiar pañales.Pero después de sólo unas pocas veces cambiar pañales nos dimos cuenta de la mesa es demasiado baja.Así que construyo este simple adj
Cómo hacer una mesa para el televisor y la PS4.

Cómo hacer una mesa para el televisor y la PS4.

. Esta Simple tabla que se puede utilizar para poner tu TV, PS4, libros, DVDs, CD de juegos y PC.  Puede hacerlo por ti mismoPaso 1: herramientas . Necesitamos este metros de herramientas para la medición, tornillos, taladro, destornillador y tijeras
Agua de mesa para niños

Agua de mesa para niños

Mis hijos les encanta jugar con agua. Así que en lugar de tener que lidiar con ellos haciendo un desastre en el baño todo el tiempo, quería hacer una mesa de agua, por lo que el desorden podría estar fuera.Sólo quería construir un simple recipiente q
Mesa para cama IKEA Lo

Mesa para cama IKEA Lo

hice un escritorio para la cama de mi hija Lo de IKEA. Fue su idea de hacer el escritorio debajo de la cama, como le gusta dormir en alto. También hace buen uso del espacio en la pequeña habitación.La mesa es regulable en altura y si la escalera siem
Salón plataforma mesa para dejar casa nueva

Salón plataforma mesa para dejar casa nueva

Hola a todos,Bien como dice el titulo tuve que construir una tabla mejor mira para mi casa de alquiler, sala de estar. La casa está a 20m del mar y la idea era construir una tabla que cuando ves por darle un sentido/recuerdo del mar.Paso 1: Materiale