Paso 2: Trazar y cortar






Diseño de las piezas en la hoja de metal según los dibujos. Diseño de la espalda grande panel primero, esto se puede dividir en dos piezas si está usando un pedazo más pequeño de lata. A continuación, el diseño de los laterales y estante de la ayuda. Una vez cortado el primer lado y utilizarlo para trazar el segundo lado.
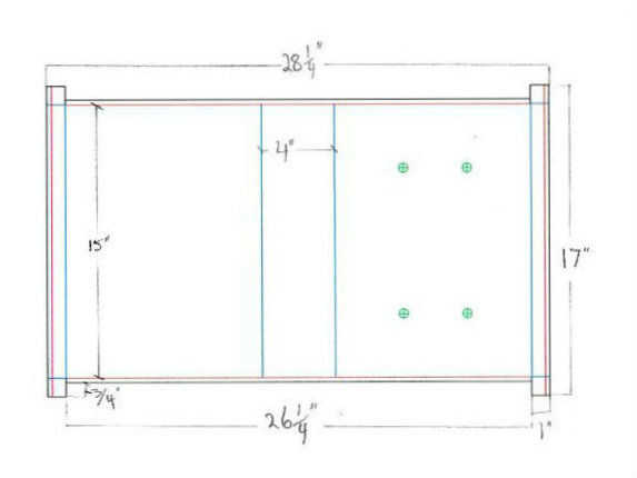
La trasera es de 17 "x 28,25". Cortar una tira de 3/4 "x 26,5" de cada lado con 1" en cada extremo. Cortar 1/4" en el lado para hacer una ficha de 1" x 1" en cada esquina para que 1/4" del borde puede ser doblada sobre.
Composición de los lados, marca en 1" del borde de la lata y el diseño forma centro primero usando el diagrama. Una vez que el centro es apoyado por las pestañas de la marca que salen 1" de cada uno de los bordes, éstos se utilizarán para sujetar el horno juntos.
Diseño de la plataforma soporte 2,5 "x 34,5" (o más largo y corte más adelante como lo hice).
Usando las tijeras, cortadas las piezas, te sugiero usar guantes para proteger tus manos.













