Paso 4: El cuarto obstáculo (qué y cómo para)





El último reto que se tiene que hacer son los grifos móviles.
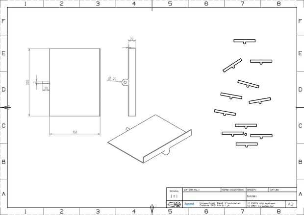
LO QUE USTED NECESITA
materiales
· Paneles de madera (dimensiones ver primer dibujo)
· Pegamento
· Tornillos
· Paneles de aluminio
Utilidades
· Taladro
· broca para madera 7mm
Cómo
7 perforaciones de 8mm de diámetro.
Coloque las llaves móviles en los agujeros pero no pegar es imprescindible que puede girar.
Las últimas piezas que necesita son las cestas de metal de hoja (ver dibujo 4) hiciste antes. tornillo les bajo los grifos móviles por lo que puede coger al derramar agua.













