Paso 3: Instalar la contabilidad



Es el momento de instalar el libro de los estantes.
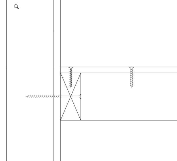
Mida hacia abajo desde el techo para cualquier clara distancia que desee entre el techo y el estante superior. Opté por 24"(600 mm) para la distancia claro, pero este valor es variable. Mida hacia abajo un adicional 7/16" para tener en cuenta el espesor de la OSB. Se trata de la parte superior de la contabilidad superior. Usando un asistente o sus destrezas, fije la contabilidad a la pared usando los tornillos de largo cubierta de 4". Me gusta tornillos porque requieren típicamente un cuadrado o estrella poco. Estas cabezas de bit son agradables ya que no tira hacia fuera tan fácilmente como una cabeza de phillips. Instale los tornillos en cada uno y cada viga, a lo largo de la longitud de 96"(2440 mm) de largo 2 x 4.
Repita el paso anterior para el segundo y terceros libros. La distancia de centro a centro entre la parte superior y mediados libros es 24"(600 mm), y entre el medio y el fondo 20 1/16 pulgadas (510 mm).
Nota: Si vas a poner este estante contra una esquina, puede o no puede pensar en poner una placa de cortante en la pared en este momento. No y solo une las vigas cruzadas en la pared perpendicular. Esto debería hacer más sentido en las páginas siguientes.