Paso 2: planes de




Las figuras que se muestra muestran las dimensiones del material útil.
En primer lugar, tienes que copiar la hoja de OSB por la mitad para hacer 2 estantes ancho de 24"(600 mm). Estos serán la parte superior y estantes centrales. La siguiente hoja de OB debe ser Ripeado hasta 18"(450 mm) de ancho y 24" (600 mm) de ancho. Una tabla vio ayuda, aunque una mano firme con la habilidad vio voluntad funcionan casi tan bien.
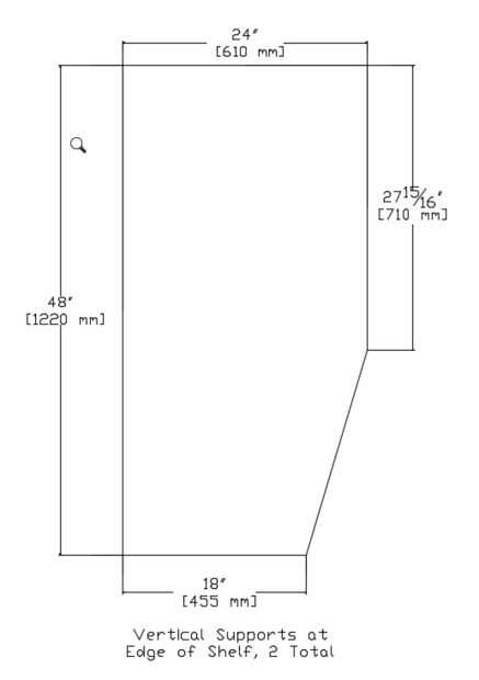
A continuación, tome el 24"(600 mm) pieza amplia de OSB de la segunda hoja de OSB y corte que en la mitad, así que tienes 2 24" (600 mm) x 48"(1200 mm) láminas de OSB. Cortar como se muestra en el dibujo anterior.
A continuación cortar 3 de 2 x 4 abajo como se muestra en la figura. Terminarás con 8 21"(535 mm) largos y 16 4" piezas largas (405 mm). 16"(405 mm) piezas serán superadas en un borde, tales que el borde corto sólo será 14 15/16 pulgadas (380 mm) largo.
Además, no necesita hacer nada con el 2x4s restantes.