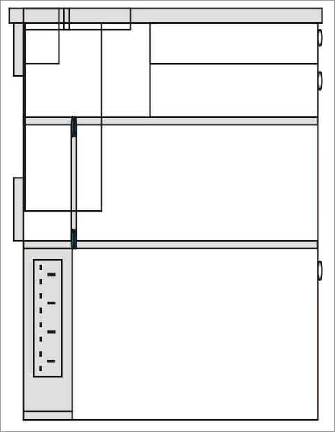
Escritorio elegante y funcional con un PC integrado (2 / 14 paso)

Paso 2: Plan de

En primer lugar, aquí están los planes para todo, aparte de la caja del ordenador.

Artículos Relacionados

Elegante pulsera Unisex con llanta de coche

Elegante pulsera Unisex con llanta de coche

Gente encantadora,Siempre quise hacer esas pulseras de ancho, el tipo de llevaba por los guerreros y gladiadores. Había cansado de paracord, alambre, cartón pero ninguno de ellos tenía la apariencia, la deseaba.Había visto muchos proyectos impresiona
Linterna funciona con agua

Linterna funciona con agua

Las pilas son demasiado convencionales, ¡hagamos una linterna funcione con agua! Esta es mi versión más reciente de un proyecto anterior, y esta vez usamos centavos. La linterna funciona por usar el agua como su fuente de electrolitos.Sacando un poco
Hacer el teléfono/tablet/escritorio un control remoto con un Raspberry Pi

Hacer el teléfono/tablet/escritorio un control remoto con un Raspberry Pi

Tengo mi equipo de trabajo en red y audio/vídeo en un armario de cableado. Algunos equipos como los receptores de satélite tienen control remoto de RF. Pero la mayoría de los equipos tiene control remoto por infrarrojos. Este Instructable le mostrará
Condensador de Liebig con el soporte integrado

Condensador de Liebig con el soporte integrado

Hace unos meses un amigo mío construyó un refrigerador de tubo de cobre de Liebig. Lamentablemente para él no tenía el equipo para probarlo. Afortunadamente para mí tenía el equipo para probarlo y chico funcionaba bien. La única queja fue que era dif
HumidorPi: Un elegante Humidor barato con frambuesa Pi y nodo-rojo

HumidorPi: Un elegante Humidor barato con frambuesa Pi y nodo-rojo

Se trata de cómo modifiqué un estándar 100 humidor del cigarro para proporcionar humedad constante y temperatura a través de WiFi.Características:Costo total unos 125$ incluyendo 55$ para el humidor no modificado. Podría hacerlo más barato.Interfaz W
Elegante lado bollo con maquillaje

Elegante lado bollo con maquillaje

momoluvers Hey! Lo de momo y hoy que estoy nuevamente con un tutorial con clase y elegante. Sé que yo no he estado haciendo instructables para más de lo habitual, pero estoy feliz de decir estoy de regreso y estaré en un nuevo horario. Estoy planeand
Cómo forzar una cerradura (funciona con clips)

Cómo forzar una cerradura (funciona con clips)

en este instructable describiré cómo forzar una cerradura de diseño pin y vaso común. Voy a describir toda la información importante necesaria para forzar una cerradura. Aquí hay un video de mi cosecha un bloqueo.Paso 1: Suministros e información imp
Mi sexto proyecto: Elegante chasis tanque con Sensor ultrasónico

Mi sexto proyecto: Elegante chasis tanque con Sensor ultrasónico

En los proyectos anteriores he intentado diferentes maneras de controlar manualmente el tanque inteligente. Pero, ¿qué tal si el tanque hace su propia decisión y el control de sí mismo? Debe ser bastante interesante. Sensor de ultrasonidos puede ayud
Cómo elegir una cerradura con un clip para papel.

Cómo elegir una cerradura con un clip para papel.

(ADVERTENCIA esto elegirá una cerradura no tomo cualquier responsabilidad de cualquier cosa con este objeto.!)con eso de esto es cómo hacer un lock pick con clips.lo que se necesita.1) dos grandes dimensiones sujetapapeles2) un par de pinzas.3) y una
Fácil y muy barato iPod soporte y accesorio soporte (funciona con la mayoría de iPods)

Fácil y muy barato iPod soporte y accesorio soporte (funciona con la mayoría de iPods)

esto es una manera muy fácil y barata hacer (tipo de) un iPod soporte y accesorio soporte (auriculares y paño de limpieza) usando sólo un viejo caso de cassette de música.Paso 1: Encontrar el caso de cassette yo estaba tendido en la cama viendo en mi
Elegante Panel Solar con Arduino

Elegante Panel Solar con Arduino

Un par de meses atrás me interesé realmente por energía solar. No es el más eficiente de las energías renovables pero hace su trabajo por ser accesible a la mayoría de las personas alrededor del mundo. Es barato y fácil de usar también encontrarás en
Teléfono luz a luz UV Hack!! (Funciona con otras luces también!)

Teléfono luz a luz UV Hack!! (Funciona con otras luces también!)

Hola Youtubes y Instructaganders es lo TrollFaceTheMan y hoy que voy a mostrar un truco aseado para hackear casi cualquier luz L.E.D. varados en un improvisado UV luz. También en este video voy a probar con una luz incandescente y ver cómo compara.Lo
¿Cómo controlar el TV funciona con entrada analógica y Arduino

¿Cómo controlar el TV funciona con entrada analógica y Arduino

alguna vez has querido utilizar una perilla de vieja buena para controlar el volumen del televisor en lugar repetido botón pulsando? ¿O que sea controlado por la luz? ¿Tiene su control remoto para ser sustituido por un arduino impresionante y deja ha
Lucir elegante y hermosa con el vibrante colección Casual Salwar Kameez

Lucir elegante y hermosa con el vibrante colección Casual Salwar Kameez

La etnicidad de diferente cultura y tradiciones de la India pueden ser representadas con eficacia por los vestidos diferentes usados por las mujeres del país. Particularmente hablando de las mujeres de la India, están rodeados con un montón de opcion