Paso 12: El PC caso





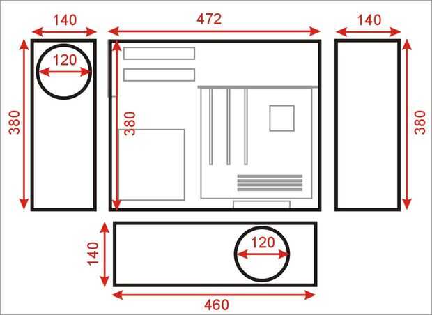
Se trata de una simple caja de madera de 6mm. La primera figura muestra cómo todos los componentes se arreglan en el caso. La segunda imagen muestra las dimensiones de la parte posteriora y los lados de la caja, que la tercera foto muestra el frente con la puerta que dará acceso a los intestinos del PC.
Cortar todas las tablas (recuerden dejar un agujero para el cable de alimentación - no es en la foto, porque su ubicación dependerá de Dónde está el enchufe más cercano en su pared), pintura y barniz les y unirse a la parte posterior y los laterales utilizando las juntas de montaje plástico que se utilizan mucho en armarios y corta tornillos. Si lo haces y/o, la superficie externa quede perfectamente lisa. Añadir la perilla de la puerta y un pequeño imán en la puerta y el lado derecho de la caja para asegurarse de que cierre correctamente. No entrar en la parte delantera al resto aun.
Ahora tomemos el caso de PC viejo e inútil y corte dos pedacitos de él - la parte apoyando la motherboard junto con la parte trasera y la parte que sostiene los discos duros. Fijar la parte de Motherboard, Tarjeta madre en la parte posterior de la caja de tal manera que se deje suficiente espacio en la parte inferior para colocar un ventilador (c. 2cm) y asegúrese de que la placa trasera está por encima de la línea de la puerta en el tablero frontal (de modo que cuando se unen el frente abierto la puerta, no puede ver el borde del panel posterior). A continuación fije el marco para los HDDs, otra vez, asegurándose de que habrá suficiente espacio a la izquierda de la izquierda para ajustar el otro ventilador. Dependiendo de qué tipo de viejo caso tuvieras te necesite unir esta parte Diferentemente - si es necesario, unir con la portada.
Finalmente, usted necesitará dos clavijas más grandes para el tablero trasero para apoyar la fuente de alimentación del tornillo. Hacen tanto 10cm de largo y en forma de L - la parte superior de la 'L' se atornillarán a la pared posterior, la fuente de alimentación viene dentro el ángulo de la 'L' y ' parte inferior de L se asegurará de que la PSU no se mueve. Únete ahora tanto las clavijas con la pared posterior utilizando uno cada tornillo solamente - de esta manera podrás convertirlos y cuando termine el caso será más fácil sacar el adaptador de red.
Finalmente, coloque la placa frontal y la puerta al resto de la caja y llenar con componentes (mejor comienzo con los fans).
El caso está ahora listo para acoplarse al resto de la PC. A unirse a él con los dos tableros de construcción posterior (núms. 3 y 4) con tornillos con tuercas de mariposa.













