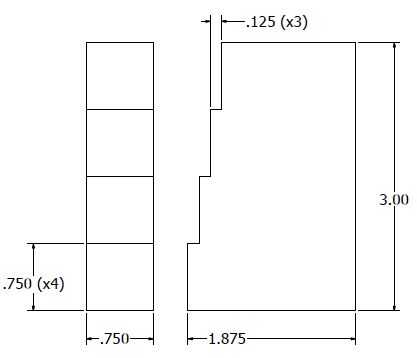
Escalera imposible (3 / 10 paso)

Paso 3: Corte lateral segunda

Artículos Relacionados

Cómo diseñar tarjetas pop-up

Cómo diseñar tarjetas pop-up

He publicado unos instructables sobre cómo hacer tarjetas pop-up específicas (como la paloma, sala pop-up o la tarjeta de regalo), pero esta vez me gustaría compartir consejos para diseñar tus propias tarjetas desde cero. Hay muchos tipos de pop-ups,
Inicio Penrose pasos

Inicio Penrose pasos

esto es una réplica de la escalera de Penrose de la creación. Esto fue una experiencia interesante, así como un montón de diversión para construir y ganar!"La escalera de Penrose o pasos de Penrose, también llamados la escalera imposible, es un objet
Estante de pared escalera horizontal

Estante de pared escalera horizontal

Ya ha pasado un tiempo, pero estoy con otro instructivo! Esta vez con una escalera de mano montado de pared práctico!Surgió esta idea después de ver una foto en mi Facebook news feed con una pequeña escalera montada en una pared. Yo pensé, ¡ qué cool
Escala/Scape: Serie de semitonos luz Panel

Escala/Scape: Serie de semitonos luz Panel

Scape de escala es una serie de imágenes del panel de luz que se convirtió en una residencia de artista de tres meses en el muelle 9 en San Francisco. El proyecto es una investigación sobre los umbrales de la percepción humana y la historia de las té
Arte del pixel de madera en pequeña escala (v2)

Arte del pixel de madera en pequeña escala (v2)

este instructable es un seguimiento a mi anterior, que era todo acerca de hacer pixel arte de madera, bastante pequeño así que usted puede decorar su escritorio con él. El objetivo de este instructable sigue siendo el mismo, pero el método es muy dif
Puerta de bebé DIY escaleras para alrededor $10

Puerta de bebé DIY escaleras para alrededor $10

tengo escaleras, y tengo un niño pequeño.Si quería seguir teniendo un niño pequeño, necesitaba una manera de mantenerlo fuera de las escaleras.Así que exploró el local mercados del bebé y encontró una puerta de $100 +.Bien pensé que era un poco demas
Cómo hacer un puente casi-imposible de Domino

Cómo hacer un puente casi-imposible de Domino

si has visto mi otros Instructable, Sabe usted que hay un montón de objetos imposibles que sólo puede obtenerse. Pero ¿por qué hacer que sea completo en la vida real? No vistas especiales, hacer uno. Aquí se aprende a hacer una a continuación de domi
Completa escala de GLaDOS Papercraft réplica

Completa escala de GLaDOS Papercraft réplica

Hola otra vezy welvenir al AportureScience's en línea fuerade origen usuario enestructuractivos manual.  Aquí encontrará la guía de archivado paso-por-paso en el aprendizaje cómo construct uno de sus más populares y _intelligent de productos, el Gene
Cómo convertir un xtwin de silverlit/airhogs en un plano de escala modelo

Cómo convertir un xtwin de silverlit/airhogs en un plano de escala modelo

es este instructable sobre convertir aviones rc silverlit.airhogs de avión de escala. Antes de comenzar debe tener en cuenta que se va ser muy difícil de hecho cerca de imposible para reconstruir su ORIGINAL plano luego por favor hacer seguro de que
Construcción de una escala de 1:1 Portal Gun con luces

Construcción de una escala de 1:1 Portal Gun con luces

Introducción:Este Instructable detallará el proceso pasaba por construir mi propio Dispositivo Handheld de Portal Aperture Science [AKA la "Portal Gun"] de los juegos de válvula Portal y Portal 2. Aunque la pistola de portales es el foco princip
Escala guante Dragon

Escala guante Dragon

Quería hacer una proposición interesante sin tener que gastar demasiado dinero. He visto kits de escala de dragón que usted puede hacer punto en guantes de aspecto genial, pero nada tenía los dedos o garras. Esto me dio una idea para hacer un guante
Escala 1:1 Replica BB-8 Prop

Escala 1:1 Replica BB-8 Prop

Justo antes del lanzamiento de Star Wars, la fuerza despierta, crea una réplica a escala completa de la adorable pequeña BB-8. Trabajando con un pequeño presupuesto, se basó en materiales ahí mi estudio y comprar sólo lo que necesitaba. Mi réplica fu
Deslice la regla usando escalas de registro común y Natural

Deslice la regla usando escalas de registro común y Natural

Las reglas de diapositiva que llevaron a los hombres a la luna fueron hechas sin ordenador, así que estas instrucciones se basan en producción computerless. Hay libros en existencia que contienen las escalas de registro necesario sin necesidad de uti
PELIGRO: Loco alto voltaje arcos (escalera de Jacob de)

PELIGRO: Loco alto voltaje arcos (escalera de Jacob de)

Este proyecto fue creado por Adam Meikle, Colton Berge y Aidan Hutchison, WHS AP física período 5.Explicación:La escalera de Jacobs trabaja tomando un alto voltaje corriente en un alambre de cobre y puentes al otro cable por arco eléctrico. La corrie