Paso 1: Establece el marco



Otra vez, esta máquina entera se hace de recortes y pedazos de poste de andamio, le dará las dimensiones, pero compone la cosa cuando fui a lo largo de
Las patas son 4 pedazos de poste de andamio 30 pulgadas (76 cm)
la parte superior es cuadrada 1 caja y media pulgadas cuadradas, es de tamaño 20" x 24" y las piernas se sueldan con autógena en el interior las esquinas.
Splay las piernas ligeramente para dar un aspecto agradable a la máquina y agregar estabilidad. Mi polea grande es 15" de diámetro (38 cm)
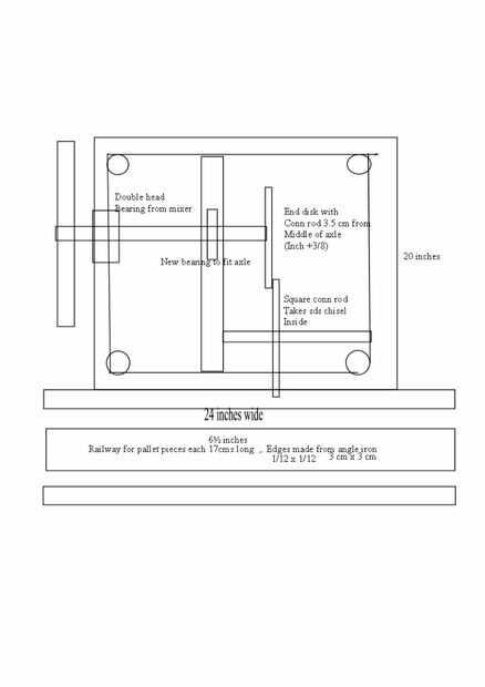
por lo que ahora en una posición para marcar un lugar para él en el marco. Necesita el viejo árbol para comprar un árbol más nuevo, el mio es 18"(45 cm). Soldar o perno de la carcasa de doble carrera, para que el borde de la rueda de la polea está en el borde del marco y hacer una vivienda para la compra carrera de bola y que soldar una pieza cruzada va a través de 24" parte de la estructura. El centro de la barra del eje es ahora la línea de centro para configurar la biela de empuje y tire el cincel... He encontrado la altura debe ser la misma o el cincel podría sentarse ligeramente por encima de la línea de centro, pero no por debajo como tiende entonces a enlazar. Otra consideración sería el sentido de giro del motor, por lo que cualquier y tuercas tienden a apretar cuando giran y no deshacer. Puede ahora determinar donde la bancada debe sentarse por deslizamiento de la correa en y bloqueando el motor, hice un tensor de la correa, pero que no es realmente necesario, solo Sujete el motor en su lugar y ver que funciona libremente sin deslizamiento, agregar las cuatro abrazaderas inferiores al mismo tiempo. También he apoyado el rodamiento de las cubiertas superior e inferior con tiras. Puede Agregar el volante al eje, necesita aprovechar para un perno M8 y también encontré que necesitaba "Loctite" para evitar que el perno de ser flojo.