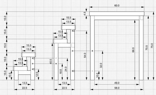
Paso 8: alturas


Aquí están las medidas esenciales de cualquier articulación pivote y alguna otra altura de las estructuras y tableros de madera.
Tenga en cuenta que cualquier medida de altura viene de un estudio exhaustivo y no se puede cambiar uno de ellos sin consultar a todos los demás.
Mis barras de madera son 3.5 x 4.5 cm, y las juntas son gruesas de 4.5. Si tienes barras con diferente altura o dimensión se debe cambiar todo el proyecto, pero no dude en preguntar en el foro de ayuda y tableros de madera.