


Primer bit aquí se trata de una explicación para el laico, la teoría subyacente por así decirlo. Si desea ver algunos dibujos, saltar hacia adelante. ¿Qué es un plan? ¿O cualquier tipo de dibujo? Un dibujo es una forma de comunicación, ya sea que estás dibujando un caballo para tratar de comunicar la belleza a alguien, o está tratando de comunicar el diseño de una pieza a alguien, o incluso a ti mismo. ¿Cuál es mi objetivo aquí? Ahora, yo no soy un redactor, ni siquiera tienen un grado de elaboración. Pero, soy un ávido constructor y fabricante y se perderían si no diseño mis partes. Soldar, máquina, me Herrero, hago un montón de cosas. Y necesito poder ambos diseño mis proyectos o piezas para mis herramientas y necesito ser capaz de mostrar estos diseños a alguien y ser capaz de entenderlo. Veo mucha gente, aficionados y tal, que necesitan para elaborar una pieza que están trabajando, ya sea porque está pidiendo ayuda en la construcción, o tratando de conseguir a alguien para hacerlo para ellos (es decir, conseguir algo en una tienda de máquina no puede hacer en casa), y claramente no pueden dibujar su diseño, dificultando así el proceso de construcción. Así que pensé que compartir parte de mi experiencia en dibujo y lectura de impresiones, para ayudar a otras personas comparten sus ideas más claramente. Mi objetivo es entonces, no te enseñan a dibujar una casa, o darle el equivalente de las clases de redacción, pero es para mostrar los fundamentos básicos del dibujo a imprimir. ¿Por qué Ve el multi? Si nos fijamos en casi cualquier impresión azul de una pieza, usted verá varias vistas del mismo, esto es especialmente común con cualquier dibujo más complicado. La razón de ser es que mediante la adición de diferentes puntos de vista de una parte, puede ver las características ocultas que y conectar los puntos (como dirían algunos) con el pieceLook confuso en algunas las siguientes imágenes y sus notas; Voy a tratar de toThis primero poco aquí es de una explicación para el laico, la teoría subyacente. Si desea ver algunos dibujos, saltar hacia adelante.
¿Qué es un plan? ¿O cualquier tipo de dibujo?
Un dibujo es una forma de comunicación, ya sea que estás dibujando un caballo para tratar de comunicar la belleza a alguien, o está tratando de comunicar el diseño de una pieza a alguien, o incluso a ti mismo.
¿Cuál es mi objetivo aquí? Ahora, yo no soy un redactor, ni siquiera tienen un grado de elaboración. Pero, soy un ávido constructor y fabricante y se perderían si no diseño mis partes. Soldar, máquina, me Herrero, hago un montón de cosas. Y necesito poder ambos diseño mis proyectos o piezas para mis herramientas y necesito ser capaz de mostrar estos diseños a alguien y ser capaz de entenderlo.
Veo mucha gente, aficionados y tal, que necesitan para elaborar una pieza que están trabajando, ya sea porque está pidiendo ayuda en la construcción, o tratando de conseguir a alguien para hacerlo para ellos (es decir, conseguir algo en una tienda de máquina no puede hacer en casa), y claramente no pueden dibujar su diseño, dificultando así el proceso de construcción. Así que pensé que compartir parte de mi experiencia en dibujo y lectura de impresiones, para ayudar a otras personas comparten sus ideas más claramente.
Mi objetivo es entonces, no te enseñan a dibujar una casa, o darle el equivalente de las clases de redacción, pero es para mostrar los fundamentos básicos del dibujo a imprimir.
¿Por qué Ve el multi?
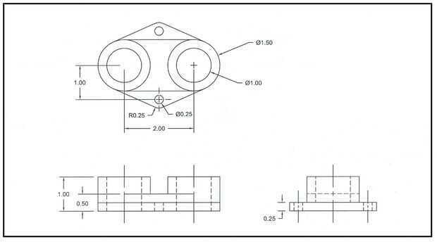
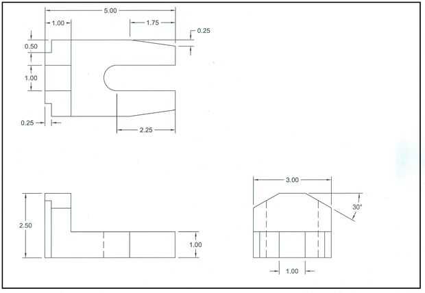
Si nos fijamos en casi cualquier impresión azul de una pieza, usted verá varias vistas del mismo, esto es especialmente común con cualquier dibujo más complicado. La razón de ser es que mediante la adición de diferentes puntos de vista de una parte, puede ver las características ocultas que y conectar los puntos (como algunos dirían) con las piezas confusas.
Mirar algunas las siguientes imágenes y sus notas; Voy a intentar demostrar lo que quiero decir.