Paso 3: construcción






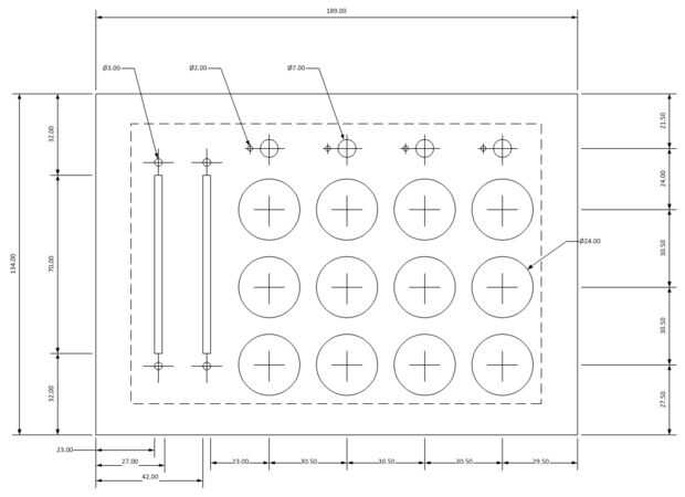
Como usted probablemente vio en la fase de diseño, todas las dimensiones por donde los componentes deben colocarse están marcados hacia fuera. No sólo hace esto ayudará en el diseño, pero también es útil cuando se trata de marcar por donde cortar el recinto. He incluido el esquema para mi diseño del controlador final. Recuerde marcar los orificios de tornillo u otros orificios de montaje (necesitaba algunos extras para cada potenciómetro rotatorio).
Basado en el esquema existen tres tipos de agujeros a realizar; un agujero pequeño de 7mm para los potenciómetros rotativos, un agujero de 24mm más grande para los botones de arcade y una ranura larga y estrecha para los potenciómetros deslizantes. También necesitaremos otro pequeño agujero en la parte posterior de la caja para conectar el cable USB a la placa Arduino y obviamente los agujeros de tornillo.
Medida y marca dónde cortar
Hay dos maneras de ir sobre este paso. El primero es agarrar una regla y lápiz y, utilizando el esquema como referencia, marcar el centro de cada agujero y las ranuras para los reguladores.
El segundo método (que recientemente descubrí en esta Intructable) es imprimir una copia tamaño 1:1 del esquema y pegarlo a la superficie de la caja. En efecto esto hace todo de la marca requiere y puede reducir el error a la vez. Dado que es el caso, me fui con esta segunda opción.
Adjunta es 1:1 esquema en formato pdf, listo para imprimir. Cuando impresión Asegúrese de que no se escala antes de ser enviado a la impresora. Simplemente corte alrededor del rectángulo punteado para el papel en el hueco del frontal, luego pegarla hacia abajo usando cinta de doble cara. Para cortar el papel que recomiendo agarrar una regla de metal y una hoja de seguridad, luego alinee la regla con la línea de puntos y correr la lámina hacia abajo de su longitud. De esta manera los cortes será agradable y recta. Asegúrese de que tener algo proteger la superficie de trabajo por debajo de!
Taladre los agujeros
Al perforar los agujeros es una buena idea para perfore un pequeño agujero piloto primero y luego usar las brocas más grandes para perforar los agujeros de tamaño completos. Iniciar la perforación a través del centro de cada botón arcade marcado en el esquemático con una broca de 2mm y luego hacer lo mismo para las marcas de potenciómetro rotatorio.
Cambiar a una broca de 7mm y perforar los orificios piloto del bote giratorio para expandirlas. En este momento tomé el libro manual de reparacion de la caja porque sólo iba a conseguir rasgada a los fragmentos. Cambiar a una broca de 24mm y taladre los orificios guía para los botones de arcade. Cuando se utiliza la pala de bits Recuerde tomarlo lentamente hasta conseguir un agujero circular y agradable. Asegúrese de que tiene un agarre sólido o una pinza que sujetan la tapa de la caja a la superficie de trabajo, más saltará alrededor de una broca durante la perforación.
Entrar en la ranura
Una segunda impresión en el esquema del gancho agarrador y pegarlo a la tapa de la caja. Con una broca de 3mm, perfore los orificios para los potenciómetros deslizantes. Ahora viene la parte tediosa/diversión. Para hacer el surco, una serie de agujeros todo el camino abajo la longitud de la ranura del taladro. Los orificios deben estar separados por no más de 1-2mm. Tómese su tiempo y tratar de mantener los agujeros lo más recto posible.
Después de todo de los agujeros han sido perforados, utilice la broca avellanada para avellanar los agujeros para los potenciómetros deslizantes. Estos agujeros deben ser avellanados de lo contrario que la perilla deslizante golpearía la cabeza del tornillo expuesto cuando alcanza la parte superior o inferior de la ranura. Al perforar estas perforé sólo una pequeña cantidad en un momento. Entonces me agarra uno de los tornillos de cabeza avellanados y ponerlo a través del agujero para comprobar si la cabeza fue al ras con la parte superior de la tapa. Repetir este proceso tantas veces como sea necesario para obtener el mejor acabado posible.
Ahora utilizar los archivos de divisor para quitar el plástico entre los agujeros que funcionan la longitud de la ranura de la corredera. También presentar suavemente los lados interiores de la ranura por lo que es tan recto y tan suave como sea posible.