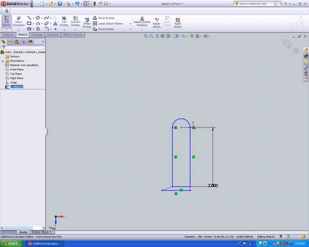
Cómo hacer que un hombre deprimido de caja

el hombre caja deprimido es una figura hecha con Solidworks para imprimir con un makerbot. El verdadero propósito de este instructivo es mostrar donde usted puede empezar haciendo simples humanos como figuras.
Etiquetas: Figura, Humanos

Artículos Relacionados

Cómo hacer que un hombre extraño lego

Cómo hacer que un hombre extraño lego

hoy te diré cómo hacer que un hombre extraño lego para cuando te aburres con tu man.ps de lego regular no importa esta foto su inútil!!!!!!  glich de OMGPaso 1: para este tipo de extraño lego se necesita: 2 ladrillos de 2 x 2 y 1 2 x 4 ladrillo son m
¿hacer que un hombre de alambre

¿hacer que un hombre de alambre

que siempre quisiste a un hombre de palo 3D? Bueno este es el instructivo para usted. Sé que mis fotos... chupan mucho porque no tengo una cámara. Este es mi 1er instructable para im abierto para cualquier sugerencias y comentarios.Paso 1: cosas que
Cómo hacer que un hombre masilla tonto

Cómo hacer que un hombre masilla tonto

un proceso súper fácil hacer un hombre masilla tonto. Usted apenas necesita masilla tonta y el huevo envase!Paso 1: Bola encima masilla tonta la bola de la puttyc tontaPaso 2: Corte masilla Utilizar el huevo para crear 5 piezasPaso 3: Mush todas las
Cómo hacer que un hombre de la bola de nieve

Cómo hacer que un hombre de la bola de nieve

este es un proyecto para cualquier persona de cualquier edad.Paso 1: Paso 1: materiales Tendrá tres colores de cualquier tipo de escultura material o arcilla y alambre quisquilloso (se muestra en la imagen).Paso 2: Paso 2: haciendo que el cuerpo En p
Cómo hacer que un hombre súper impresionante de LEGO

Cómo hacer que un hombre súper impresionante de LEGO

lo que debe-1. una minifigura de Super-man2. una minifigura de soldado clon de Star Wars3. una minifigura de Hawk-eye4. imaginación(Por cierto este es mi primer ' ible para decirme si es bueno.)Paso 1: Los brazos pt.1 Conseguir el clon brazos soldado
¿Hacer un hierro hombre completo Metal Chestplate + brazos

¿Hacer un hierro hombre completo Metal Chestplate + brazos

desea mostrar a su amigo tus habilidades de construcción y originalidad? Este instructivo puede ser ideal para usted! Le mostrará cómo hacer un chestplate full metal y armas que te hacen están fuera de la multitud, literalmente! Puede hacer que el hi
Una caja de Sierra de cinta pueden hacer que los niños

Una caja de Sierra de cinta pueden hacer que los niños

he probado todo tipo de proyectos de la caja con los niños. Algunos son bastante buenos, otros no. Lo que quiere la mayoría de los niños es una pequeña caja con cajones en él. La Sierra es perfecta para esto pero mayoría de los diseños que he probado
Hacer que un ordenador portátil mediante una frambuesa Pi

Hacer que un ordenador portátil mediante una frambuesa Pi

¿Siempre ha querido un equipo portátil que puede llevar con usted? Esta es la forma más fácil de construir su propio. Para aquellos de ustedes que no saben lo que un Raspberry Pi es, es un ordenador completo del tamaño de la baraja de cartas que pued
Cómo hacer que una Variable cabeza lente de Zoom de lente telescópica de cámaras

Cómo hacer que una Variable cabeza lente de Zoom de lente telescópica de cámaras

Para todos los fanáticos de lupa, precisión arte trabajadores, investigadores, biólogos, micro electrotechnicians, reparadores de joya, Borg y muchos más, mejoran la vida y alegría, construir un Variable Zoom cabeza lente.Tener ambas manos libres par
Cómo hacer que tus zapatos resistente al agua

Cómo hacer que tus zapatos resistente al agua

si el tiempo es lluvioso, y estás fuera de casa, por supuesto se mojará. Este Instructable le mostrará cómo hacer que tus zapatos impermeables. Al lado de los zapatos puede hacerlo también a tus otras cosas! Por lo tanto, vamos a empezar!Paso 1: Lo q
Cómo hacer que el sofá de Lego doble Decker por menos de $250

Cómo hacer que el sofá de Lego doble Decker por menos de $250

Todo es impresionante todo es genial!Todos excepto el sofá doble de Decker, una gran idea por una persona loca (o minifigura).La única manera de obtener correctamente una de estas maravillas de la ingeniería es a comprar un conjunto de $250 y viene c
Cómo hacer que un compañero de la soldadura (de plástico de la hoja)

Cómo hacer que un compañero de la soldadura (de plástico de la hoja)

[actualización - gracias a todos los que votaron en la! concurso de impresora 3D - tuve la suerte de ganar una! Más, así que ahora puedo proceder con soldadura Buddy Mark III (Mark II está mejorando Mark I con usted sugerencias abajo) y suelte los ar
Hacer que un controlador de NES USB

Hacer que un controlador de NES USB

este tutorial combina un controlador original de NES, USB teclado, alambre y tacto pasa a un controlador de NES USB adecuado para uso con NES y arcade emuladores. La idea básica es que la unidad de controlador de teclado está instalada en el controla
Cómo hacer que la Espada Maestra - Zelda: Ocarina of Time

Cómo hacer que la Espada Maestra - Zelda: Ocarina of Time

En el aprendizaje de hoy les enseñaré cómo hacer una lista con maestro espada de Zelda: Ocarina of Time con PVC y un apagado el estante termoplástico!Paso 1: Ver el videoVER VIDEO AQUÍ¿Estás listo para hacer un dulce espada maestra que no requiere de