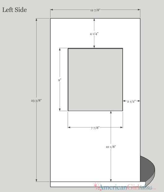
Cómo hacer francés panadería de gracia (5 / 20 paso)

Paso 5:

Cortar la ventana cuadrada para la panadería. Una vez más, usted puede omitir este paso, pero tu panadería no tendrá sol!

Artículos Relacionados

Cómo hacer una pizarra de lujo estampado gracias tarjeta

Cómo hacer una pizarra de lujo estampado gracias tarjeta

En este tutorial que hago esta hermosa gracias tarjeta usando una mezcla de nuevos y viejos productos de Anna Griffin, sin embargo podría ser hecho con tantos otros artículos que usted podría tener. Así que es hora de polvo esas pegatinas apagado otr
Hacer tu propio Drillium! (Componentes de bici perforados)

Hacer tu propio Drillium! (Componentes de bici perforados)

Hoy vamos a aprender cómo hacer Drillium! Para aquellos que son curiosos, drillium (y millium) son palabras para describir componentes de bicicletas que han sido modificados por medio de mecanizado para disminuir peso y agregar personalidad o perfora
Cómo para hacer un trabajo Lego calculadora mecánica

Cómo para hacer un trabajo Lego calculadora mecánica

este Instructable le mostrará cómo hacer una calculadora funcionamiento de lego que puede añadir +, resta-, multiplica x y división \! Utiliza un tren de engranajes que se enciende un punto de giro de la perilla de control en una décima parte de una
Hacer tus propios fósforos impermeables!

Hacer tus propios fósforos impermeables!

Hacer fósforos impermeables en casa no es nada nuevo. De hecho, este instructable fue inspirado por "Cómo hacer fósforos impermeables." Pero quería hacer algo original. Quería rehacer fósforos impermeables de algo único. Así, en vez de usar cera
Cómo hacer pollo al limón de mamá

Cómo hacer pollo al limón de mamá

Este instructivo le guiará a través de 7 pasos para hacer pollo al limón de mamá.Mamá sabe que tiene hambre y no te hacen esperar demasiado en la cena. Por lo tanto, que ha hecho esta receta puede tener listo en sólo una hora!Mamá también entiende qu
Cómo "Hacer Toledo" en 30 días (o menos)

Cómo "Hacer Toledo" en 30 días (o menos)

¿estás planeando visitar la zona de Toledo y necesitas algunas ideas de cosas que hacer? Bueno, estás de suerte! Tenemos 60 sugerencias maravillosas para usted.En este Instructable encontrará imágenes y detalles de las diferentes actividades que se t
Cómo hacer bolas de arcilla

Cómo hacer bolas de arcilla

Hi todo el mundo!Hoy tengo otro instructivo, en este instructable mostrará usted cómo hacer bolas de arcilla.Espero que lo disfruten! Vamos a empezarPaso 1: Lo que usted necesitará: Las cosas que usted necesitará:. Arcilla (color de su elección).un l
Cómo hacer un cohete paja impresionante

Cómo hacer un cohete paja impresionante

usted necesitará una regla, tijeras, pajitas, bomba de bicicleta, aletas y pistola de pegamento caliente(lo sentimos no hay pic de aletas, bomba y pistola encoladora vienen más tarde)Paso 1: paso 1 usted tendrá que cortar sus pajas en 6 a 8 cm de lar
De tarea para vestir camisa: hacer Geek-Chic moda

De tarea para vestir camisa: hacer Geek-Chic moda

Yo recenlty abrió una compañía llamada moda Variable. Nuestro objetivo en Variable es hacer negocio ropa adecuada para gente geek. Piensa es atractivo y debemos llevar nuestros geekyness con orgullo! El Instructable siguiente está demostrando cómo pa
Hacer de un simple Robot con modelado 3D

Hacer de un simple Robot con modelado 3D

introducciónLa idea de este proyecto empezó cuando yo estaba estudiando y dado una asignación con la breve llama titulado "articulación". La idea era crear un objeto que demuestra la articulación (movimiento y articulaciones) mediante una impres
Hacer un disco de oro

Hacer un disco de oro

hacer un registro de éxito y vender sobre 500.000 copias y te han ido oro. ¿No juego cualquier música y nunca hará música que aficionados a la música a las tiendas en tropel, pero siento que he hecho algunas cosas interesantes y por qué no tener un h
Cómo hacer un mantel de arte para niños pequeños

Cómo hacer un mantel de arte para niños pequeños

Esto es casi como un tutorial, es más justo hacerlo y necesita. OK, usted necesita si usted tiene un niño pequeño, o si te gusta pintar y eres pintor desordenado o una persona desordenada con cubos de pintura, como yo. Admito que algún mantel para mí
Hacer una tapa de clip de papel bonito y barato

Hacer una tapa de clip de papel bonito y barato

este instructable muestra cómo hacer una tapa con un clip fácil de hacer y muy baratoPaso 1: materiales Este es mi primer instructivo espero te gusteLos materiales:1 clip grande (recomiendo encarecidamente el uso colred que lucen mejores)Herramientas
Cómo hacer colores griptape para fingerboards.

Cómo hacer colores griptape para fingerboards.

Este es un instructivo que te enseña a hacer griptape fingerboards o cubiertas tech en un presupuesto muy bajo, aunque el producto final es de una calidad bastante alta.Paso 1: Lo que usted necesita. Todo lo que necesitas:-Sharpies colores,-una regla