Paso 9: Diseño de cuadro personalizado






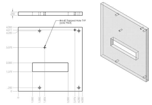
Nota: Las imágenes que adjunto no son a escala. Dan dimensiones de una caja de acrílico 0,25". Después de un viaje a Lowe, decidí usar 0.08" acrílico en su lugar, por lo que las dimensiones se ajustaron por consiguiente cuando se envían a lo cortador del laser. Desafortunadamente, estos planes se pierden en el éter. Usted tendrá que utilizar su juicio con el diseño de la caja. Acceso a un taladro (o taladro) y un grifo de ayuda tremendamente. No recomiendo intente cortar los agujeros más pequeños (3/32") con el cortador del laser - deberán ser taladrados en su lugar.
En las seis imágenes proporcionadas, se dan siete piezas de la caja. Una es para un separador horizontal dentro de la caja, que se utiliza para apilar el Pi de frambuesa por encima de la placa. Una vez fueron cortadas todas las siete piezas, los agujeros deben perforados hasta el tamaño adecuado de piloto y luego aprovechados como se indica en los diagramas. Tenga en cuenta que los agujeros de la pantalla LCD están ausentes en la placa frontal y tendrán que ser añadido.
Antes de ensamblar los lados y la parte inferior, conectar los pulsadores y pantalla LCD a la placa frontal. Después de esto, los cuatro lados y la parte inferior se pueden montar con resina de 1 minuto. No utilizo epoxy sobre la pieza superior, ya que me gusta ser capaz de abrir la caja (bisagras o cinta transparente son ambos sería una buena opción para conectar la parte superior).
Una vez que se ensamblan a los lados, la placa debe sujetarse a la parte inferior usando el velcro. 1.25" separadores se deben agregar, luego el pedazo de centro atornilladas a éstos. Después de conectar el cable de cinta, la Pi debe montada en los más pequeños 0,325" distanciadores y atornillada en su lugar. Fije la parte superior, y el sistema es completo! Fotos del producto final se dan en el último paso.