Paso 13: Batería caja estante




Materiales:
- 1/8" hoja gruesa de aluminio
- Hoja de acrílico gruesa 1/4"
- Cuatro -> abrazaderas para tubos de 1"
- 8 -> botón de 4/1-20 cabeza de tornillos y tuercas
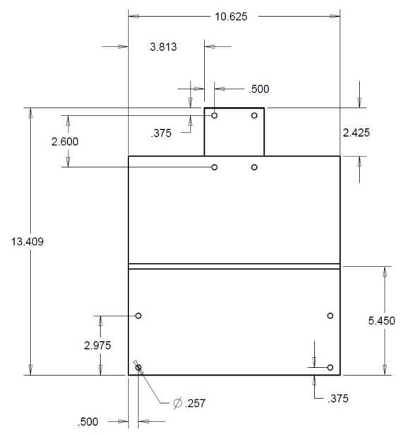
El estante de la caja de batería está hecho de aluminio de hoja gruesa de 1/8".
- Use el dibujo adjunto como guía para recortar la forma básica de metal de hoja y taladrar los agujeros. Los agujeros son 0,257" de diámetro (aunque un taladro de 1/4" probablemente haría bien).
- Usted puede cortar a lo largo de la línea doble que es 5,45" desde la parte inferior y soldar los dos trozos juntos, como se muestra en la foto, o puede doblar la chapa 90° a lo largo de esa línea (el que sea más fácil).
- Coloque el estante en el bipedestador con 1" soportes de tubo como se muestra en la tercera foto. Para hacer los clips de ajuste, puede que necesite volver a darles forma utilizando unos alicates o apretones de tornillo de banco, como se muestra en la cuarta foto.
- Ajuste el estante de abajo con 1/4-20 tornillos y tuercas, como se muestra.
No dude de los componentes de la pintura como le parezca. En nuestra estructura completa, hemos pintado negro.