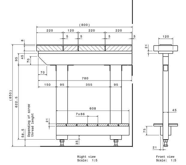
Paso 2: secciones









Empezar a crear las secciones transversales de madera de dimensiones 45 x 95 mm.
Parte superior:
Hace aprox. 30 m m más largo que la profundidad de la superficie de la mesa. Se corte esto para corregir longitud más tarde...
Parte delantera y trasera vertical / piernas:
Corte a la altura deseada y conectar con los soportes de ángulo.
Baje la conexión inferior de soporte del estante:
Monte una madera más fina a cada lado. Observar a les tornillo diagonal enfrente a cada lado. Debe haber espacio para el tornillo de pies entre los tornillos de fijación.
Hacer la longitud como el ancho total deseado de la bandeja inferior.
Pies de taladrado:
Cuando voltee hacia abajo y perfore un agujero de 20 mm en la parte inferior de cada pata.
Asamblea:
- Monte los pies montados (tornillo, tuerca y arandela).
- Monte las unidades completa transversal a los soportes de ángulo de pared.
- Utilizar algunos restos repuesto tablón temporalmente conectarlos juntos para evitar que se caiga.