Paso 1: Cortar la madera contrachapada


De la 1 º hoja cortará:
— Las dos paredes laterales de la caja, mide 60 "x 24"
— La parte superior e inferior del gabinete, medida 36 "x 24"
Nota: hojas de madera contrachapada no son siempre cuadradas, sus dimensiones pueden reducirse levemente por ese factor. Trate de comprar hojas de forma cuadrada (vengan a la yarda de la madera con una plaza de confianza). En cualquier caso, se pierde 1/8" en cada corte (ancho de la hoja de sierra), por lo que sus dimensiones será un toque abajo los bonito ronda números.
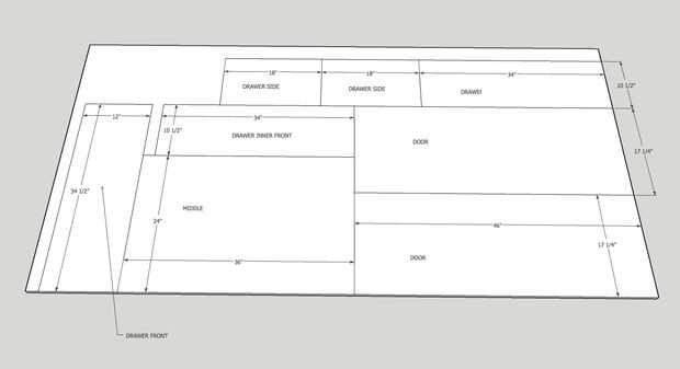
De la segunda hoja:
— Las dos puertas: 45 3/4 "x 17 1/4" (terminarás cortarlos un poco, pero por ahora esas dimensiones hará)
— El estante intermedio de la caja, separando la sección principal de la gaveta, 36 "x 24"
— La parte frontal de la gaveta, 34 1/2 "x 12"
— Y los paneles que componen la caja del cajón: 2 placas de 34 "x 10 1/2" y 2 placas de 18 "x 10 1/2"