Paso 3: La básica forma del árbol


El primer paso es armar las 24 cajas plano-embalado en, Umm, su forma de caja.
He probado varias colas que ya tenía alrededor de la casa. A continuación pega no trabajo:
- Arte PVA / pegamento para madera
- Pegamento caliente del derretimiento
- epoxy de 5 minutos
Todos estos pegamentos no unir las cajas y todas las casillas necesitan para volver a pegar. El pegamento "líquido uñas" funciona muy bien. Aplique el pegamento de uñas líquido, entonces mantenga las cajas en forma hasta que el pegamento se seca. Hizo montones de las cajas en las cajas de piso 6 alto, luego coloca una pesada pieza de madera en la cima de las pilas.
A continuación, pegan las cajas horizontalmente para formar la forma del árbol. Te hace falta:
- 1 fila de 2 cajas
- 2 filas de 3 cajas
- 1 fila de 4 cajas
- 1 fila de 5 cajas
- 1 fila de 6 cajas
Y tienes 1 sola caja sobrantes para la parte superior.
Las cajas son bastante pesadas y lo suficientemente rígido como para que no pegan las filas verticalmente. Las filas son simplemente apiladas uno encima del otro para hacer el árbol. Salir de las filas sin pegado también hará guardar el árbol más fácil, listo para el próximo año.
Puesto que tenía más del doble el número de cajas que necesitaba (compré un paquete de 50 cajas), hice dos árboles, un árbol para nosotros y para la familia de un amigo. La otra familia divertimos decorando su propio árbol, a su manera.
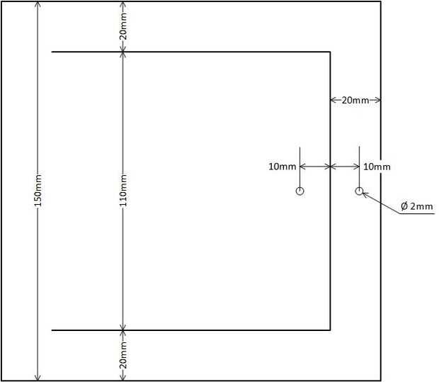
A continuación se marca hacia fuera de las puertas. Puede imprimir el .pdf Tamaño plantilla (instalada) y utilizarlo para marcar hacia fuera mucho más rápido. Desde que tuve el valor de 2 árboles de marcar hacia fuera a hacer, hice una plantilla de madera y simplemente trazadas alrededor de él. También sería fácil crear una plantilla de cartón.
Usé la "herramienta multiusos" para cortar las puertas. Si no tienes una de estas herramientas, un cuchillo de la manía aguda funcionaría muy bien. A continuación, usé un taladro con una broca de 2mm para perforar los agujeros en la puerta y el marco de las cajas.













