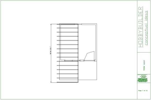
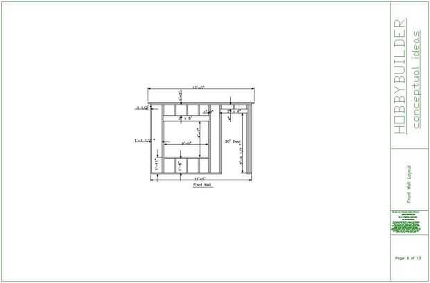
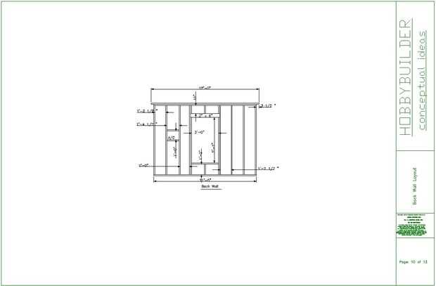
Paso 11: Bocetos conceptuales













He adjuntado copias de los bocetos conceptuales que diseñó y construyó la cabina de. Atribuyo este descargo de responsabilidad para los bocetos por la razón obvia:
"Estos bocetos y toda la información contenida en cada dibujo es para Referencia General.
Se trata de Bocetos conceptuales sólo .
No se utilizará para la construcción .
Por la presente se indica que los conceptos y dimensiones contenidas dentro de estos bocetos no son correctos, ni se cumplen cualquier códigos de construcción. Estudiando e incorporando ideas conceptuales en estos bocetos, están asumiendo toda responsabilidad para el diseño de construcción adecuado, dimensiones apropiadas, comprensión y aplicación adecuada, técnicas que cumplen con todos los códigos de construcción locales y asegurar todos los permisos locales y estatales necesarios para la construcción de su proyecto."
En otras palabras, para los efectos legales, estos son para el placer de la visión solamente...