Paso 2: Cortar el soporte





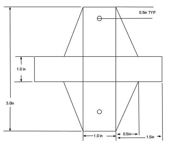
1 sacar una plantilla para los cortes en una pieza de chapa de acero y marca donde estarán los agujeros de montaje. (El que os adjunto no es dibujar a escala así que no lo use como plantilla, sólo existe para dimensiones)
2 cortarlo quieras a, corté mina usando una amoladora angular, mientras que la obra fue colocada en un vicio.
3 anotar las dos líneas con una amoladora o una dremel para hacer más fácil el plegado.
4.it es mucho más fácil perforar los agujeros de montaje mientras que la pieza es revelada por lo que aconsejo que hacerlo en este paso.
-En primer lugar, ponga una marca de golpe en cada hoyo se supone que debe para ser.
-Taladre dos agujeros usando una broca apropiada al tamaño de sus tornillos de montaje.
-Ya que voy a ser con tornillos para madera decidí fregadero también contra los orificios para que los tornillos van a quedar mejor. Si no tienes un cortador que se puede hacer algo así sólo puede utilizar una broca más grande.
5.I también el corte de la pieza en una esmeriladora de banco y aplicarles filetes poco ha añadido en la esquina que se pega hacia fuera.













