Paso 1: materiales

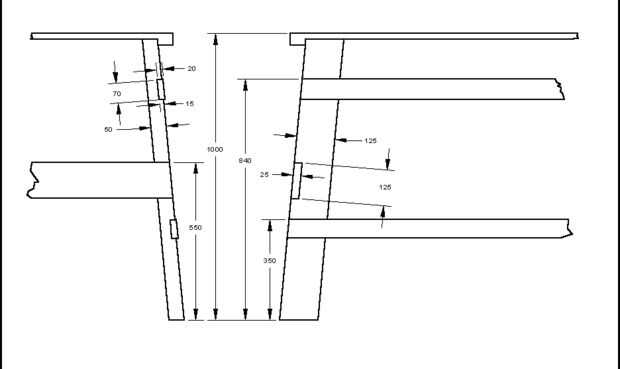
Las piernas son abedul, sección 13 cm x 5 cm y 1m de largo. Son bastante grandes para el peso como fuerza. Solían ser backposts en un piano vertical y el arce para el torno estaban en una plataforma.
Los separadores son roble, los cuatro largos son 2 cm x 6 cm y 160cm de largo y los dos cortos son 2,5 cm x 12 cm y 101cm de largo. Creo que son de una cama o una mesa.
Usé dos tornillos para madera cabeza número 10 o 12 planos para cada articulación. No van a través de todo el camino.
El estante inferior es parte de una vieja caja de transporte, la etiqueta dice que era para un grabador del laser pero no sé qué. Es madera de mala calidad que utilizo siempre que puedo para no tener que tirarla.













