Paso 2: El diseño









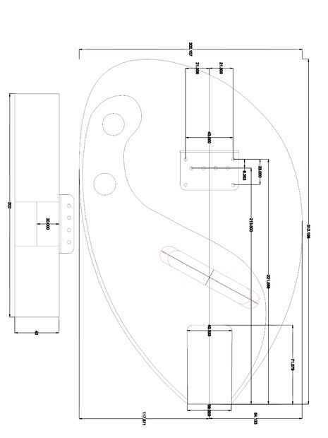
Bosquejó el diseño a mano y había elaborado en AutoCAD. Me encanta a CAD y construyó un modelo 3D de la uke que se produjeron los dibujos en 2D. El diseño fue elegido como he limitado solamente herramientas y espacio de trabajo para que un diseño simple fue preferido. Este diseño asimétrico se ve bien, creo.
Como un barítono tiene una longitud de escala de 508mm (20") y las cuerdas son espaciadas a 11mm en el puente de hasta 9 mm en la tuerca.
Estoy especialmente orgulloso de la contrapunta. Me hubiera gustado más delgado, pero el tamaño de las cabezas de la máquina y la ruta de acceso de cadena dictó las dimensiones, sobre todo porque no quería que árboles de cadena o guías por todas partes, por lo tanto el cabezal inclinado. El modelo de CAD aquí es de la primera iteración del diseño con un cabezal de estilo Fender plana que fue cambiado a un estilo inclinado de Gibson.
El águila de ojos entre usted puede haber notado que el CAD izquierda se entrega. No tengo ni idea de por qué esto es, debe ser una estratagema para actualizar a pro "dibujos de los usuarios pro misteriosamente no cambian de orientación"