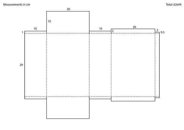
Paso 2: Hacer la caja

Puede diseñar un cuadro de usted mismo, utilice mi plantilla o utilizar una caja existente. Si usas mi plantilla solo corte la líneas completas y el pliegue en la línea punteada. Sólo pegar la tapa de la caja de que los lados se mantendrá en su lugar por esta tapa.