Tejido parte superior mesa de desecho (1 / 3 paso)

Paso 1: montaje

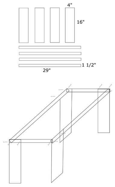
Corté la madera de desecho de dos tablones de madera que fueron aproximadamente 2 pulgadas de espesor. Ya que usé un serrucho que los planos no eran tan rectos como me hubiera gustado. Sin embargo he presionado adelante y enarenó. Uno de los planos fue pintado ya y sólo lo había raspado. Primera con 60 grano grano luego 120 y finalmente con papel de lija de grano 240. Después apliqué una capa de un aceite base madera mancha y dejó cerca de 2 días para curar. Entonces reuní a la mesa al igual que el diagrama.

Artículos Relacionados

La parte superior de la última mesa de trabajo!

La parte superior de la última mesa de trabajo!

Using cheap mousepads makes for a low cost, VERY easily repaired, handsome and comfortable workbench!Paso 1: El problema Banco de trabajo tiende recoger daños de soldador, mugre de tripas de radio viejo, x-acto corta y así sucesivamente.Paso 2: Quite
Cortar por la parte superior del tanque: Gire el tejido/laddering en bloques de grandes

Cortar por la parte superior del tanque: Gire el tejido/laddering en bloques de grandes

rediseñar una tapa del tanque (o camiseta) con tijeras. No coser involucrados. Corte ranuras en el tanque en la espalda y delantero y luego tejer las tiras junto con un giro de la armadura / escalonado. El tejido de la parte posterior tiene tiras anc
Bebé, cambio de bandeja que encaja en la parte superior un estante

Bebé, cambio de bandeja que encaja en la parte superior un estante

deben cambiar bebés. Algunas personas como em cambiar alrededor de altura de cadera. Para estar seguro: usted puede comprar un cambiador en el que a cambio de lujo. O puede cambiar su biblioteca en un soporte para una bandeja en la que el cambio pued
La parte superior de la patata-Killer

La parte superior de la patata-Killer

cada cierto tiempo, una papa solitaria encontrarán su camino fuera de la bolsa, rodar lejos de su familia, solo suspirar en los oscuros recovecos de su despensa.¿Qué puede hacer cuando, meses más tarde, descubres este straggler, arrugada y de sabor d
Reciclada muy fácil 2 X 4 y acero superior mesa de centro

Reciclada muy fácil 2 X 4 y acero superior mesa de centro

usted podría hacer esta tabla básicamente nada pero una tronzadora, taladro de mano y lijadora. la soldadura no es necesaria (perno de la parte superior y a unir las piernas sin la soldadura de las esquinas).hacer y ver tantas mesas bases de acero y
Cinético mármol pista alrededor de la parte superior de una habitación

Cinético mármol pista alrededor de la parte superior de una habitación

es este Instructable para la construcción de una pista de mármol alrededor del exterior de una habitación.Esta pista está construida principalmente de madera y utiliza canicas de vidrio de 1 pulgada.  Hay dos dispositivos de elevación utilizados para
Mantenerlo Simple - cómo cortar la parte superior de un barril de cerveza para hacer un Keggle

Mantenerlo Simple - cómo cortar la parte superior de un barril de cerveza para hacer un Keggle

La parte más difícil de convertir un barril en un Keggle es cortando la parte superior.Encontré un método muy fácil y simple que tendrá unos 5-10 minutos para hacer y 5-10 minutos para ejecutar.Herramientas que necesitarás:Amoladora angular con empuñ
Camiseta de la NASA a la transformación de la parte superior del tanque!

Camiseta de la NASA a la transformación de la parte superior del tanque!

Aunque sé que hay un montón de camiseta transformación instructables aquí, pensé que me gustaría añadir uno más para la costurera ligeramente más avanzada! Además utiliza una camiseta de la NASA impresionantes! A continuación es un vídeo que hice sob
Soporte de altavoz de centro para la parte superior de su TV de pantalla plana

Soporte de altavoz de centro para la parte superior de su TV de pantalla plana

cómo construir un soporte de cartón altavoz que apoyará su altavoz central encima de la pared LCD o Plasma.Echa un vistazo a la última etapa para que pueda visualizar lo que estás haciendo antes de comenzar.¡Buena suerte!Paso 1: Mapa de la curva de l
Juego de guantes y la parte superior de una camisa de manga larga

Juego de guantes y la parte superior de una camisa de manga larga

si crees que los guantes son muy difíciles de hacer, me atrevo a probar este método fácil! Comience con una camisa de manga larga y terminar con una camisa de manga corta y un par que empareja de guantes que fue por encargo para usted.Cuando estoy fu
Suspensión de la parte superior

Suspensión de la parte superior

¿Te gusta hacer tus propias cosas? (Si haces porque estás en 'instructables' ;))¿Tienes un montón de tapas de cerveza o soda?Usted puede hacer un gancho de llave con ellos.Permite reciclarlos!Cosas que necesitará1 clavoTijerasMartilloPinzasUna almoha
Parte superior del Bikini Bandeau de la colmena

Parte superior del Bikini Bandeau de la colmena

Es verano y caliente y siempre estoy queriendo usar un lindo bikini nuevo a la playa. Me siento como en las tiendas ahora que he estado viendo muchos tops de bikini de estilo bandeau y parecían tan fáciles de hacer así que pensé que me gustaría proba
Parte superior desmontable de planchar (en gabinete)

Parte superior desmontable de planchar (en gabinete)

no es que yo planchar ropa, pero que necesito para poder plancharlos cuando cosen. Y una parte posteriora del malo, por lo que no hay manera que me voy a ir y obtener una tabla de planchar cada vez coser una costura.Mi máquina de coser está en el bal
Mostrador con parte superior desmontable

Mostrador con parte superior desmontable

¿Cansado de dando vueltas de pupitres y mesas alrededor de las esquinas? ¿Es usted enfermo de marcas de desgaste en las paredes de las piernas de madera y su torpe amigo? Bien no más, como nuestros mejores ingenieros aquí en Kyle Co. han llegado con