Paso 2: diseño













En el muelle 9, hay un montón de favores se intercambian. Este proyecto es un favor para Paolo Salvagione, quien amablemente hizo una tonelada de acero inoxidable de la soldadura de uno de mis proyectos.
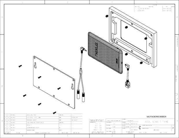
Los marcos son para cuatro Nexus tablets que arte interactiva aparece en ellos en un museo en San José.
Paolo y yo trabajamos juntos para diseñar un marco que permita la tableta caber cómodamente, dejar espacio para las conexiones USB y audio y colgar en una pared con orificios.
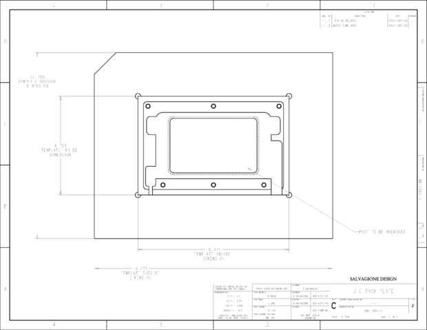
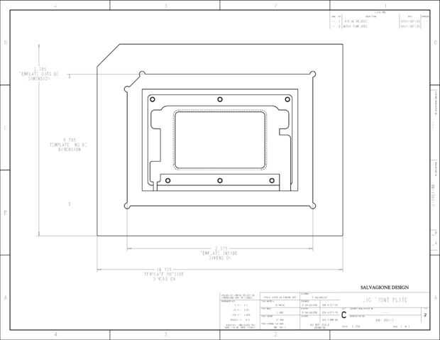
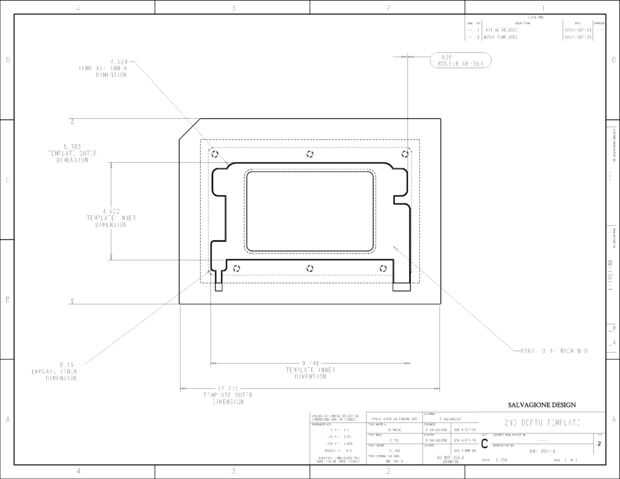
Terminamos con un diseño de 2 partes: un marco de madera dura enrutado con un aluminio de inserción trasera con orificios del integrado.
Los archivos DXF y PDF adjuntos tienen todo que lo necesario para hacer sus propios montajes.