Paso 4: Hacer el compartimiento para los pedazos magnéticos




Necesitaremos cortar madera mdf otra vez:
-100 x 320 x 2 (x 2)
-320 x 92 x 100 x 5 (x 5)
-147 x 320 x 2
Unir las piezas como en el dibujo. Mientras está secando puede hacer el marco para la tapa de la caja
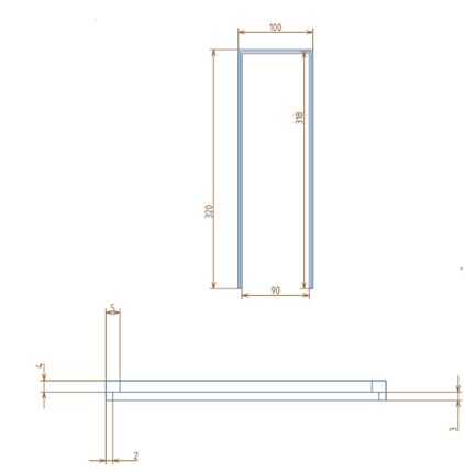
Para el marco necesitaremos mdf otra vez. Se trata de un trabajo de precisión porque necesitamos unos finos listones.
Marco superior
-320 x 4 x 5 (2 x)
-100 x 4 x 5
Unir este listones como en el dibujo. Hacer de una forma U
Marco inferior
-318 x 2 x 2 (x 2)
-90 x 2 x 2
Pegar en forma de U.
Luego pegamento los 2 marcos juntos, el uno más grande arriba.
Pegar el marco que usted ha hecho sólo a la caja que has hecho antes