Paso 3: mediciones






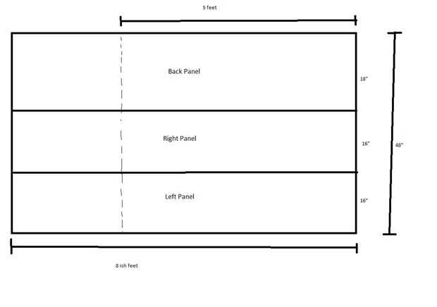
Una vez que hayas recogido tus herramientas y materiales, usted necesita medir la madera contrachapada. Sobre tengo medidas, así como (no) muy impresionantes dibujos de lo que debe parecer en mi cuaderno. Tenga en cuenta que cuando usted está midiendo frente necesitará recortar dos pedacitos en las esquinas para que el tablero de control puede caber. Ver el cuadro para la referencia. Para la espalda y los lados, mi papá y yo fuimos a Home Depot para conseguir más madera. Hay más sobre eso en el siguiente paso.













