Paso 2: medida!

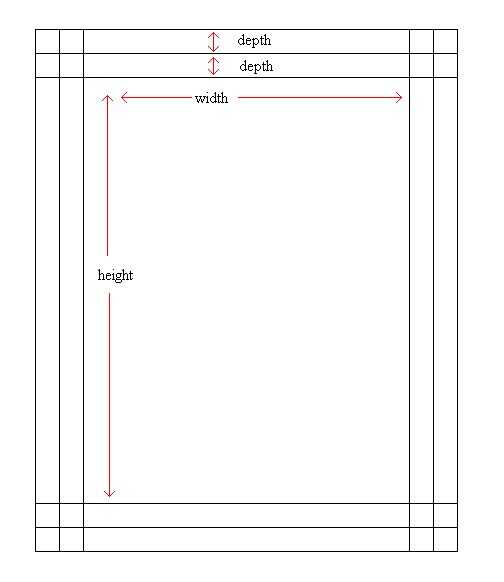
Altura y anchura: desea el panel ajuste perfectamente, así que no redondeo. Elegí mi panel cuadrado de 13cm.
Profundidad: elegí una profundidad de 1cm, por lo que el panel encuentra 1cm por encima de la base de la caja. Es necesario dejar suficiente espacio para tus pendientes mentir entre el panel y la tapa.
El panel interior es como ilustrado - medir un rectángulo de altura por anchura, luego medir dos fronteras alrededor de él, cada el tamaño de la profundidad. Es digna de ser muy cuidadoso en esta etapa, para obtener un buen ajuste. Dibujar todas las líneas a lápiz y no los borre todavía.