Soporte para lápiz cortado laser (1 / 4 paso)

Paso 1: Hacer un diseño en Inkscape

Inkscape es software de diseño 2D de código abierto. Descargar desde el siguiente enlace: https://inkscape.org/en/download/

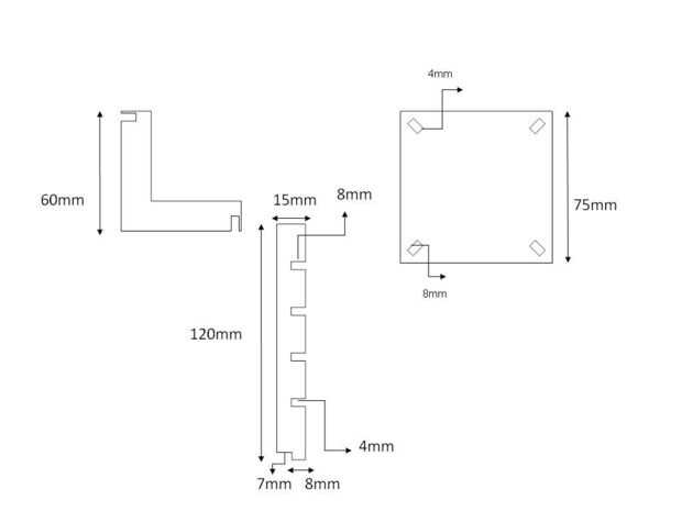
Segui el tutorial de Inkscape, que está disponible en la ventana de ayuda en la interfaz de usuario. Diseño de soporte de la pluma tienen principalmente soportes y pieza base. Diseño en Inkscape utilizando diferentes herramientas. Con la ayuda del relleno y el trazo podemos establecer ancho de corte. Primitivos de uso en el lado de la barra y utilizan las funciones como Unión, diferencia, intersección etc.to editar una forma dada en la ventana de 'Camino'. Dibujar el diseño final con tomar dada las mediciones en la figura.

Artículos Relacionados

Soporte para lápiz papel origami

Soporte para lápiz papel origami

compilador: Moksham Chhabramaterial requerido para hacer un lápiz de origami cool stand son las siguientes::minimum5 a 6 hojas de papel de origami.máximo tanto como desear u su su deseo...poco de pegamento1pentijeras(si no han papeles origami siempre
BRICOLAJE soporte para lápiz brillante

BRICOLAJE soporte para lápiz brillante

¡Hola! Aquí es un pen!Paso 1: Reunir los materiales!Hojas A4TijerasPegamentoCortador de papelY estás listo para ir!Paso 2: Cortar las tiras!Ahora corta tiras delgadas de hojas A4, cerca de 1cm de ancho y comenzar a rodar el papel para hacer los diseñ
Bolsa de ordenador portátil Combo y soporte para las rodillas

Bolsa de ordenador portátil Combo y soporte para las rodillas

esto es una verdad simple instructivo para hacer un combo portátil bolsa/funda y soporte para las rodillas. El soporte para las rodillas protege mis piernas y basura de calor, y la superficie plana da la mejor ventilación de la laptop. El soporte par
Combo para cortar ingletes Sierra madera soporte para estaciones de

Combo para cortar ingletes Sierra madera soporte para estaciones de

sierra esta estación hace deber doble como un estante del almacenaje de madera con espacio para tablas largas debajo y 4' x 8' productos de plancha en la parte posterior.  Miré a mi alrededor durante mucho tiempo en línea planes para algo así y todo
Soporte para Monitor de cartón

Soporte para Monitor de cartón

En este sencillo proyecto veremos cómo hacer un soporte para monitor de escritorio.Un soporte para monitor puede ayudar a hacer el espacio de trabajo más ergonómico. En cada oficina encontrará aquellas cajas en que se almacena el papel de impresión.
5 años aniversario plataforma soporte para teléfono de madera

5 años aniversario plataforma soporte para teléfono de madera

¿No mucho dinero? ¿No hay ideas para su cónyuge después de 5 años? ¿Acceso limitado a la herramienta? ¿Un cónyuge que no puede encontrar su teléfono? Le que vas!Paso 1: 1: Haz tus cosas juntos Si usted ha hecho a los 5 años de matrimonio, bueno para
Escritorio soporte para teléfono celular

Escritorio soporte para teléfono celular

utilizo mi celular para escuchar música y el video muy a menudo. Solía tener un HTC Thunderbolt que tiene un soporte muy útil retroceso incorporado que carece de mi nuevo teléfono (Galaxy SIII). Actualmente, tengo que apuntalar con articulos al azar
Soporte para carretes filamento 1€

Soporte para carretes filamento 1€

Mi novia tuvo la idea cuando una bobina de filamento no cabe mi impresora 3d con un agujero de montaje de 30mm.Creo que es el mejor soporte para carretes por menos de 1€ en el mundo, siempre.Pero no tome mi palabra para ella, verte a ti mismo:Se adap
Rápido y barato iPhone soporte para Stop Motion

Rápido y barato iPhone soporte para Stop Motion

Video de stop motion es muy divertido y cada vez más fácil cuando se toman en cuenta el muy eficientes aplicaciones y programas disponibles. Una cosa muy importante para el movimiento de la parada es mantener la cámara todavía. Hay un montón de stand
Auriculares y MP3 Player soporte para exhibir arte de sonido

Auriculares y MP3 Player soporte para exhibir arte de sonido

Cuando se decide hacer un proyecto de arte sonoro como parte de mi residencia en el muelle 9, tenía que averiguar cómo iba a mostrar en el muelle cuando se ha hecho. No hablar, sintió un poco como debería, Sabe usted, realmente hacer algo físico.Este
BRICOLAJE soporte para trípode teléfono

BRICOLAJE soporte para trípode teléfono

en este DIY te mostraré cómo hacer un trípode soporte para teléfono utilizando sólo un tubo de PVC de ovejeros!Permite así inicia este proyecto simplePaso 1: Herramientas que necesarias Tubo de PVC• Tornillo coincide con el tornillo del trípode• Sier
Soporte para Monitor Space-Saving

Soporte para Monitor Space-Saving

Todos los usuarios de frambuesa Pi comprender la lucha de la organización de periféricos necesarios de Pi (teclado, monitor externo, ratón, etc.). Sin duda lo hago. Aquí en Instructables se llena mi espacio en el escritorio todo con ordenadores portá
Hacer mejor que el nuevo soporte para acuario

Hacer mejor que el nuevo soporte para acuario

Después de 15 años de servicio muy apreciado en la celebración de 750 libras de una combinación de vidrio, roca, equipo eléctrico, agua y la variedad de peces y plantas acuáticas que me dan paz, era tiempo de aceptar la dimisión de mi antiguo, stand
Soporte para Sierra de inglete Dewalt de acero

Soporte para Sierra de inglete Dewalt de acero

El objetivo:Un soporte con soportes que son compatibles con los ingletadora Sierra soporte de aluminio de Dewalt (que uso en el campo), por lo que la sierra puede sujetarse en el soporte.También, hacer el inglete vio al ras con la mesa de trabajo ady