Simple corte transversal trineo (1 / 12 paso)

Paso 1: Cortar la lista

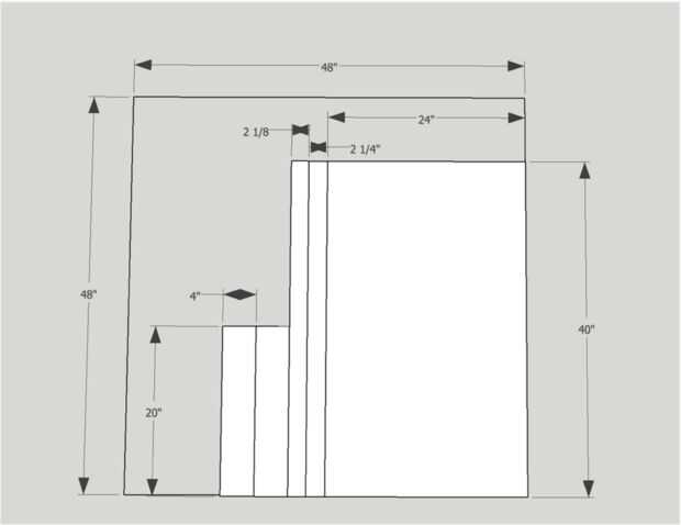
Romper sus mercancías de la hoja en trozos manejables usando su opción de una sierra de mesa (o sierra circular. Se recomienda utilizar un sistema de guía con una sierra circular. crear tu lista cortada a las dimensiones designadas.

Artículos Relacionados

Cómo hacer un mejor corte Cruz trineo

Cómo hacer un mejor corte Cruz trineo

corte transversal trineos son esenciales para la madera con sierras de mesa tradicionales. Hacen operaciones cruzadas de corte mucho más precisa, mucho más limpio y mucho más seguro. Con unos trucos, realmente puede ampliar la utilidad de esta planti
DIY: Trineo de corte transversal para mesa hechos en casa VI (video)

DIY: Trineo de corte transversal para mesa hechos en casa VI (video)

Esta vez que voy a hacer el corte transversal patín para mi sierra de mesa casera. Este patín tendrá un diseño diferente y simple de los demás, pero cortará muy exacto también. Es mi interpretación - cómo hacer un corte transversal patín y no perder
Trineo de mesa Sierra de corte transversal Fallout

Trineo de mesa Sierra de corte transversal Fallout

Necesitaba una cruz mesa corte sierra patín, pero quería algo diferente,y quería un desafío. ¿Pude hacer un trineo inspirado videojuegos Fallout que parece adapta a la estética? Me dices!El primer paso fue ideando un plan. Hay varios planes de trineo
Obtener mayor precisión con su trineo de corte transversal utilizando 1-2-3 cuadras

Obtener mayor precisión con su trineo de corte transversal utilizando 1-2-3 cuadras

Un trineo del crosscut permite que una tabla vio hacer cortes precisos y cuadrados. La adición de un par de 1-2-3 bloques aumentará aún más la precisión posible.1-2-3 bloque es una herramienta de maquinista para la configuración exacta. Es 1" por 2&q
Doble corte transversal Sled de desecho

Doble corte transversal Sled de desecho

Este es un instructivo para una simple Cruz trineo de corte, para ser utilizado con una sierra de mesa. Trineos de corte transversal se utilizan para guiar piezas de paneles de madera, pequeños etc. con precisión a través de la mesa de la sierra. Ést
Cómo convertir una mano sierra circular en una sierra de corte transversal utilizando materiales de desecho.  Bricolaje: Mesa Sierra de, mediante el uso de materiales recuperados

Cómo convertir una mano sierra circular en una sierra de corte transversal utilizando materiales de desecho. Bricolaje: Mesa Sierra de, mediante el uso de materiales recuperados

El hogar hizo corte transversal Sierra mesa ha demostrado para ser un valioso aporte para el taller y ha hecho una herramienta portátil robusto en una herramienta de corte de precisión a un bajo costo. Igualmente importante es que puede ser fácilment
SImple corte sangriento

SImple corte sangriento

Es increíble cómo el cine puede hacer feliz, triste o asustado!El peligro puede expresarse por acciones o algunas señales sobre un cuerpo. Un corte simplemente sangrienta, cambio todo!Es el comienzo de la FX.Paso 1: Increíble lo que puedes hacer...Me
Trineo con paradas de corte transversal

Trineo con paradas de corte transversal

Recientemente completé un proyecto que requiere una enorme cantidad de cortes de ranura para doblar un montón de tablas de 1 "x 12". los cortes tuvieron que ser repetida 90 veces por Junta Directiva a través de toda la longitud. Mucho para siqui
Construir un trineo/posicionador de Sierra de cinta para corte transversal y cortes largos

Construir un trineo/posicionador de Sierra de cinta para corte transversal y cortes largos

Necesitaba un trineo y la plantilla para hacer diferente un par de cortes en los registros en mi sierra. Aquí os muestro la nueva sierra y el trineo que hice para él. Os muestro también cortes de 2 maneras. Esperamos que disfrutéis.Ver en YouTube
Trineo de corte transversal para su sierra de mesa

Trineo de corte transversal para su sierra de mesa

Un trineo del crosscut es un accesorio muy práctico para la Sierra de mesa. Este es el primero de una serie de accesorios de Sierra de mesa. La razón es la primera es porque será la base desde la que empiezas en el resto. Este trineo puede ser hecho
Mesa Sierra Cruz corte/inglete trineo Combo

Mesa Sierra Cruz corte/inglete trineo Combo

Una sierra de mesa patín esencial para casi cualquier tienda de madera. Un buen patín hace cortes más segura, más precisa y permite repetibilidad cuando dosificación piezas para proyectos más grandes. Echaba de menos tener un patín que hice unas sier
Método barato fácil simple corte cónico o piezas en ángulo en una sierra de mesa

Método barato fácil simple corte cónico o piezas en ángulo en una sierra de mesa

Hay muchos Instructables que ilustran cómo construir complicadas plantillas, accesorios y trineos para cortar piezas de ángulo en una tabla vieron, como las patas de muebles cónico. Aquí presentamos un método muy sencillo para cualquier ángulo en cas
Sierra de mesa cortes transversales trineos

Sierra de mesa cortes transversales trineos

Para mi próximo proyecto que necesitaba para poder hacer un montón de cortes transversales y la guía de inglete poco cursi no iba a hacer el trabajoPaso 1: utilicéTuve algunos chatarra 3/8 madera contrachapada de 22 × 22", 2 x 2, 2 x 4, 1 1/4",
Hacer un simple corte con la Sierra de banda horizontal

Hacer un simple corte con la Sierra de banda horizontal

útil para cortar piezas gruesas de metal, tiene un corte interruptor de apagado automático.La hice en techshop:http://www.techshop.ws/