Paso 3: Fichas técnicas del proyecto.



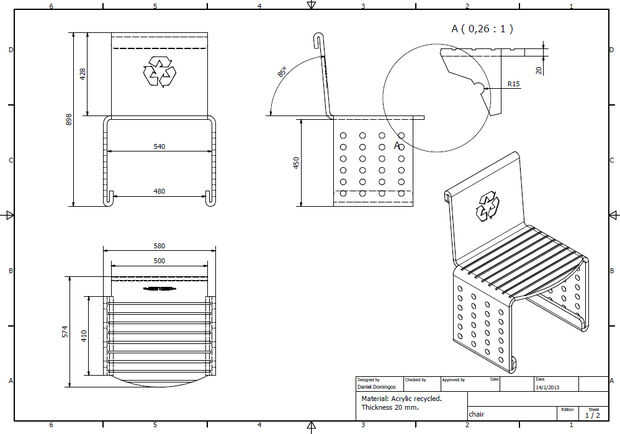
Nota: Dimensiones en mm.
Un proyecto como este generalmente se realiza con máquinas de corte láser grandes.
Después del corte se dobla la pieza de acrílico, siguiendo la dirección del dibujo técnico en las áreas a ser calentado y posteriormente doblado.
Espero que disfruten mi proyecto.
Gracias por su atención.
Nota: pido disculpas por los errores de ortografía posible, mi inglés no es muy bueno.