Paso 2: Paso 2-formando la parte superior de la tabla










Medir 1/2 de su ancho, hacer una marca, medir 1/2 de su longitud, haga una marca, donde quiera que se intersecan, hacer otra marca. (Imagen 1)
Haga una caída directamente sobre la marca en el centro paralelo a los lados de 2 pies, mueva con cuidado hasta aproximadamente 1/4 un centímetro y luego volver al centro, luego hacia abajo aproximadamente 1/4 un centímetro, esto debería darle espacio para circular cuando está girando en el 'crack'. (Imagen 2)
Ahora debe ser un rectángulo largo que ubicación, mida 1/4" de cada esquina para que el pie 2 lados (después de aquí, como lados) y haga una marca, y luego perfore con una broca de 1/2, a la Sierra de sable en. Usar el sable vio para conectar los orificios perforados, uso de precisión por lo que no ser torcido, que desea ser tan estrecho como sea humanamente posible. (Imagen 3 y 4)
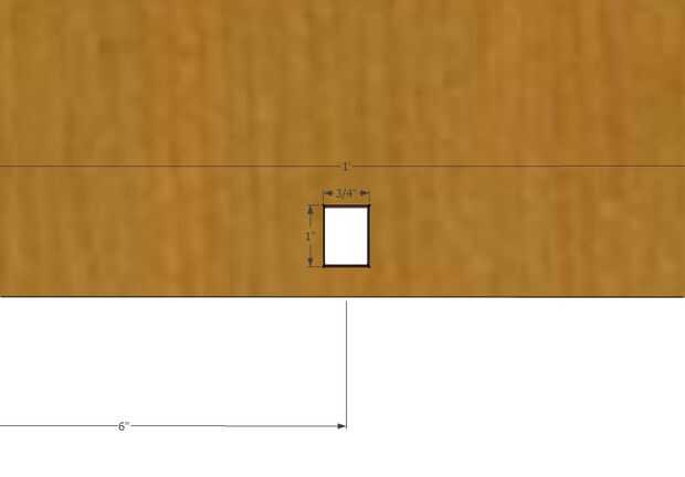
Luego medir 1'6 "(1 pie y 6 pulgadas) desde el lado izquierdo, luego hasta 2 pulgadas, perfore un agujero con una broca de 1/2. (Imagen 5)
Ahora, utilizando el agujero como un sawpoint, corte un cuadrado, el tamaño del interruptor con el sable de la sierra. SEA seguro que es por lo menos un INCHand 3/4 de madera debajo para no interrumpir y por lo que puede caber en la base. Luego ajuste el interruptor de allí usando pegamento caliente o los soportes si es necesario.