Paso 1: Cortar la madera



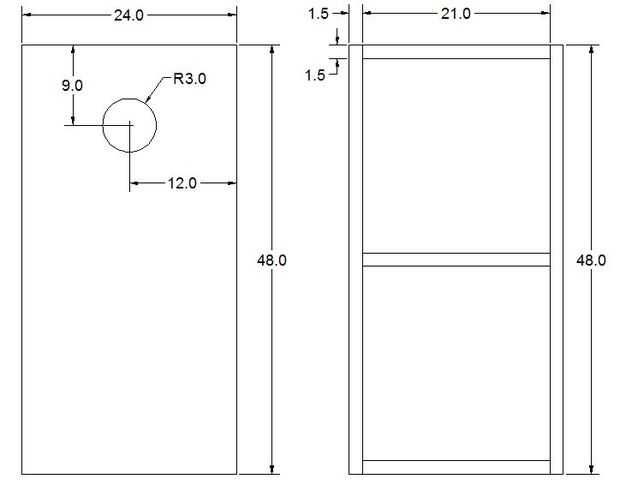
: #1 las dimensiones de cada bandeja es 2' x 4'. El agujero en el centro de cada placa es 6" de diámetro y está centrado en el 9" de la parte superior de la cubierta y 12" de cualquier lado. Cada fotograma consta de dos 48" longitudes de los lados y tres longitudes de 21" para la parte superior, media e inferior. Rasgó abajo 2 x 4 a 1-1/2 "x 1-1/2" usando una tabla vio reducir el peso total de los tableros y para ahorrar en madera.
Dibujo #2: utiliza contrachapado de abedul de 3/4" de la tienda local de caja grande para las cubiertas y las piernas. Puede utilizar este programa de corte como guía e improvisar/sustituir si es necesario.
Dibujo #3: Muestra todas las dimensiones para las longitudes que constituyen el marco. En todo lo que necesitas:
(6) - 1-1/2 "x 1-1/2" x 21 "
(4) - 1-1/2 "x 1-1/2" x 48 "
Una vez que la madera se corta al tamaño, es hora de pulir todo. Empiezo con 80 grit y luego 150 y 220 para acabar con. Lije siempre en la dirección de la veta. Usando una lijadora de mano o lijado bloque facilita este paso.