Paso 2: gabinete











No doy a una guía a los fundamentos del edificio gabinete desde mi conocimiento limitado porque hay sólo tanto saber, pero hay una gran cantidad de recursos como éste de audioholics y hay una gran cantidad de calculadoras gratis (que son gratis por una razón aunque!). Decidí ir con algún software amateur llamado Bass Box pro que todo lo que podría desear un amiture como yo tenía. calcula los tamaños de armarios y Puerto basados en los parámetros de los los drivers que vas a poner en él e incluso le da una curva de frecuencia prevista.
gabinete
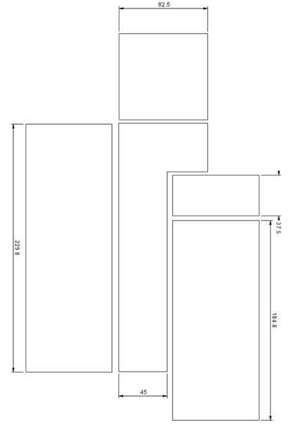
después de algún botón, empujando y dando, se me ocurrió con las dimensiones del gabinete. el gabinete debe ser 11,5 L de volumen y el puerto
Puerto
hay un montón de artículos y discusiones del Foro sobre los puertos y los diferentes tipos de puerto. algunos conductores ni siquiera necesita un puerto y un trabajo mejor con un gabinete sellado, pero mi woofer va a necesitar el flujo de aire. Fui con un puerto de ranura debido a su mayor área de flujo de aire que reduce la posibilidad de ruido de puerto donde demasiado aire trata de pasar un pequeño agujero. el puerto tendrá que ser 25-80-249 mm para tener el ajuste correcto para el gabinete
diseño
Esta fue una de las partes más largas de todo el proceso debido a mi criterio del hablante como un pedazo de muebles que tenía que las etapas de diseño adecuado, mientras que todavía trabaja dentro de los parámetros para el tamaño del gabinete.
A partir de la forma básica que tocó el violín con los tamaños hasta que fui feliz con el volumen de la caja, esto era más difícil porque tenía que tomar en cuenta el espacio tomado por el puerto y los controladores en el gabinete. El puerto con que fui necesarias para ser doblado para caber en el armario y todavía conseguir el derecho de ajuste punto del puerto, pero esto tenía la ventaja de actuar como un lugar para poner el crossover y un punto de refuerzo. El refuerzo en el gabinete sólo debían ser simple ya que se estaría utilizando contrachapado de 15mm y MDF, que es bastante rugoso como es.
revestimiento de la
La mayoría de los altavoces están cubiertos con una chapa para ocultar el feo MDF o capas que están hechos de, pero quería algo especial en el exterior del gabinete para que sea más de un pedazo de muebles y más único.
concepto que he visto cosas hermosas con maderas duras en los muebles, algunos de los cuales son aquí en instructables. Quería algo ojo catching y contrastantes, pero todavía natural y crisp.after algunas deliberaciones sobre el estilo y color decidí que rayas en contraste fueron la respuesta, tiras de caoba separados por finas tiras de roble que envuelve el gabinete.
Quería que las rayas a los lados y en la parte superior del gabinete, para ello que tuve que ángulo las rayas para conseguir que se alinee con simpatia en los laterales y la parte superior, mal explica esto más adelante, pero eso es lo que las plantillas para. La parte delantera y trasera del gabinete será revestidos con piezas de caoba sin cualquier rayas.
así como el revestimiento quiero unos anillos alrededor de los conductores en primer lugar para que no queden hacia fuera y en segundo lugar ocultar la fijación puntos y cuerpo principal de los conductores. Fui con el aluminio de los alrededores que era más barato que el acero inoxidable y pueden tener un brillo agradable con algunos pulidores.
otras cosas
Después de mirar algunos otros altavoces de alta fidelidad más profesionales que me di cuenta de que muchos de ellos tenían patas o picos en que estaban, al parecer se trata de reducir su superficie de contacto con la superficie están en así que hay menos posibilidades de los altavoces vibrando la superficie. las piernas también hará fácil compensar desniveles para no tambalearse.