Paso 3: Madera y corte








Aunque hubo varias formas de dividir el modelo en los paneles, este diseño me ha permitido adaptarse a la mayoría de los componentes en 2 paneles 4'x 8' pino de madera contrachapada.
Los paneles superiores debían cortarse de sólidos tablones de 2 x 6 y recortan a la medida.
También tuve una repuesto de 2'x 8' sección de MDF para los paneles de soporte inferior oculto a la vista. Esto puede sustituirse por cualquier espesor de madera de desecho.
Las hojas de madera contrachapada grande probablemente no cabrá en su coche. Sin embargo, puede cortar en la tienda de mejoras para el hogar. Todos los paneles rectangulares se adhieren a la anchura constante de 13,55" que puede ayudar en esto.
Una tabla vio voluntad ser enormemente útil en los cortes de la rectos larga. Lamentablemente, yo no tenía acceso a uno y alquilar una sierra circular.
Hojas de madera contrachapada
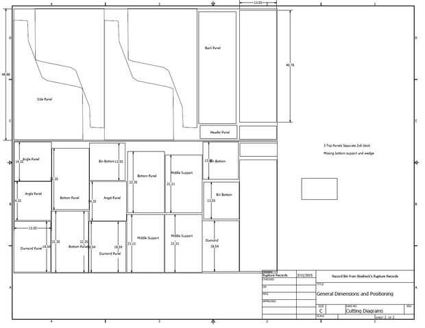
Hay un total de 7 diferentes paneles tamaño necesario cortar en tres. Los paneles laterales requieren cuatro.
Se describen en el diagrama.
Panel lateral X4
X3 espalda
Cabecera X3
Ángulo X3
Diamante X3
Fondo X3
Fondo de bin X3
Centro de apoyo X3
Se trata de un total de 25 paneles de la madera contrachapada. Tres paneles de borde fino se pueden cortar de las piezas sobrantes
Tablón de 2'x 6'
Estos proporcionan un sólido panel superior que se teñir un color consistente.
Tres que se deban recortar a 13,55" en longitud.
Ellos entonces deben recortarse a 4.5" de ancho.
MDF
Éstos pueden hacerse de cualquier madera de cualquier espesor suficiente. Proporcionan apoyo para los paneles de la parte inferior de Bin.
Tres son necesarios en 7,8" por 12,9", la longitud de los paneles de la parte inferior del recipiente.