Puf de Pacman (1 / 22 paso)

Paso 1: diseño


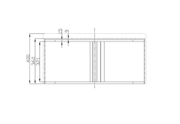
Lo primero que siempre hago cuando inicio una construcción o un proyecto, crear unos dibujos de Autocad en escala, así que en etapa posterior durante la compilación, fácilmente puedo medir los ángulos y tamaños de las carpinterías que necesito.

Los requisitos para el diseño limitado a:

Artículos Relacionados

Almohada de Pacman

Almohada de Pacman

originalmente para ser una silla PUF destinado pero no tenía suficiente material amarillo. Creo que me gusta más como una almohada aunque en realidad, irá bien con mi silla de pelotita de fantasma de Pacman.Empecé haciendo una versión muy pequeña par
Puf de cartón de leche

Puf de cartón de leche

Aunque este PUF puede parecer débil, es sorprendentemente fuerte. Es un montón lo suficientemente fuertes como para niños o incluso grandes adultos! Mi hijo ha estado usando sus más de diez años.Paso 1: Lo que usted necesita... En primer lugar, recog
Torta de limón de Pacman

Torta de limón de Pacman

Este pastel de Pacman es sólo un pastel de limón con el simple concepto de pacman junto con él.Si quieres seguir la receta de pastel de limón que he hecho, siga los pasos #3 - final. Esta receta es para 1 torta de nueve pulgadas, comparada con un nor
Disfraz de Pacman del metal

Disfraz de Pacman del metal

El último de nuestro trío de Pacman trajes de Halloween este año: Pacman Metal de aventuras de Pacman.Vea aquí nuestro juego de arcade de pacman jugable:y aquí nuestro traje de Pacman:Por lo tanto, si usted vio nuestro traje de Pacman, usted vio cómo
Aventuras de Pacman Pacman traje

Aventuras de Pacman Pacman traje

Pac-man con temática Halloween para nosotros este año. Cuando mis hijos primero dijeron que querían Pacman, todo me gusta, sí, tengo esto! Fácil! Te agarro alguna cartulina y poco de pintura y está Buenos! Entonces Zander era como, no, mamá, no que u
Cómo coser un cojín de suelo estilo PUF

Cómo coser un cojín de suelo estilo PUF

coser algún piso cojines o pufs es un divertido proyecto y los niños les encantan! Algunos de estos vi en línea venta de sobre $250 - ver aquí uno de West Elm y parece como el reciente que hice en verde! Este proyecto no es demasiado difícil, pero to
Apliques de fieltro de 8-bit'-Ms PacMan y fantasma

Apliques de fieltro de 8-bit'-Ms PacMan y fantasma

al principio, juegos de video tenía sólo 16 colores y los gráficos eran gruesos. Y éramos felices.Revisarlos más felices, más veces con estos divertidos fieltro apliques de tus personajes favoritos de videojuegos. Una vez que tengas todos los materia
Picante puffed rice - una merienda saludable libre de gluten

Picante puffed rice - una merienda saludable libre de gluten

que viven en un país tropical, muy común esperar clima impredecible. Sí especialmente este año, el clima es realmente horrible. Caliente sol de la mañana mientras que en la noche su frío y muy frío. Pero hoy en la noche, a pesar del calor del sol, re
Familia de PacMan!

Familia de PacMan!

Mi hijo, un usuario de silla de ruedas, quería ser PacMan, así que la ideaconvertido en un tema del traje de la familia ya que PacMan necesita a fantasmas! (Mamá) hice los trajes 100% decero. Fue un reto a conseguirPacMan a sentarse encima de las rue
Muerde las uñas traje de Pacman gigante

Muerde las uñas traje de Pacman gigante

Este fue mi disfraz de Halloween de 2009. Tardó un mes y medio de planificación y trabajo. Construí un Pacman y fantasma, pero este writeup se centrará en el Pacman. El traje tiene una boca funcional, así como altavoces construidos en para reproducir
Punto de Cruz un imán de nevera Blinky de Pacman

Punto de Cruz un imán de nevera Blinky de Pacman

me gusta pacman mucho así que decidí cruz-puntada los personajes y convertirlos en imanes demasiado. Espero que hacerlos porque son muy divertido, fácil y rápido.MaterialesCruz-puntada tela (utilicé la clase plástica porque es cierto menos endeble)Hi
Puf de viaje

Puf de viaje

hoteles son grandes. Tienen especialistas para hacer su cama para usted, tocino para el desayuno y zapatillas gratuitos. Lo que no tienen, sin embargo, es suficientemente enjabonado gel de ducha. Y otra vez cuando visite un hotel y optar por utilizar
Señor y señora PacMan

Señor y señora PacMan

lo siguiente "instructable" te enseña cómo crear para Sr. y señora PacMan trajes. La siguiente es una lista de materiales necesarios para completar el vestuario. También, al final es un par de pasos para crear un disfraz de fantasma para su perr
Despertador de Pacman

Despertador de Pacman

Este instructable fue creado en cumplimiento de larequisito del proyecto de la Makecourse de la Universidad de South Florida (www.makecourse.com).El resultado final de este proyecto era un reloj con temática de Pacman que almacena un tiempo y actuali