Paso 7: Suelos y diseño de linóleo


Decidí usar Sketchup para capturar todas las mediciones en un diseño que pude referencia medición y corte. (ver referencias) SketchUp es una herramienta de CAD (equipo Aided redacción) 3D que es gratuita para uso personal. Puede parecer un poco de exageración, puesto que la planta es sólo una superficie 2D, ¿por qué utilizar una herramienta de CAD 3D? Bueno, primero es gratis, y en segundo lugar he encontrado que el dimensionamiento herramientas disponibles en Sketchup son muy buenas. Aquí está el enlace a la Web de Sketchup
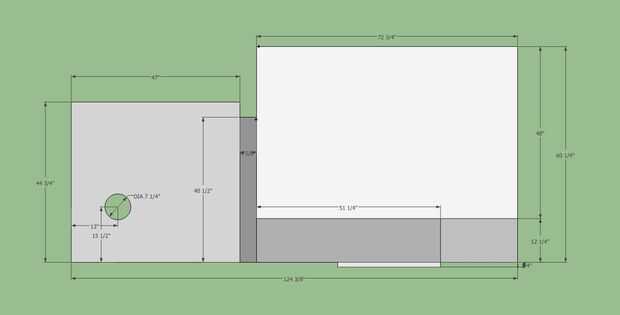
El primer dibujo muestra las dimensiones de toda la pieza de piso de madera. Todas estas medidas fueron tomadas del yeso a yeso después de que se eliminó la placa base. Como describí en la anatomía de un zócalo, estas mediciones deben ser dentro de 1/8". Hay un poco de espacio para jugar en los bordes donde hay un zócalo, pero ninguno para jugar con en los bordes donde hay no hay zócalos.
Los cortes de suelo de madera no tiene que ser perfecto, pero debe ser bastante cerca. El piso de madera debe ir completamente a la pared pero debe haber al menos un espacio de espátula entre cada articulación. Este espacio entre las juntas es para dar cabida a los cambios de humedad que pueden causar la madera contrachapada expandir o contraer. Si usted a tope les juntos, ellos pueden chirriar en algún momento en el futuro.
Primero corté las secciones más grandes y seco los montados en su lugar. Luego revisé doble las medidas de los pedazos más pequeños. Mide y orificio de la brida de inodoro última — después de que yo estaba seguro de que esa sección del piso fue colocada como sería cuando lo grapas. Usé una brújula de redacción con un marcador con cinta que para obtener el radio derecho. Luego utilicé una sierra de calar cortarlo hacia fuera. El agujero de la brida de inodoro es dentro de 1/4" de diámetro de la brida del inodoro.
Ahora para las mediciones de linóleo. Yo agonizaba sobre esta parte porque realmente no es posible sin cortar linóleo. Lo he hecho dos veces y este era más difícil que el primero. En mi primer proyecto de reemplazo de linóleo, la disposición contiene dos paredes perpendiculares que no requerían de cualquier corte. Estas dos paredes eran la base de mis medidas. Eran una constantes que podía depender. Sin embargo en este caso, era sólo una de las paredes que no sufre un corte de algún tipo.
Elegí dos lados, el lado derecho e inferior, como base de mis medidas. Esto es donde deja Sketchup hacer el trabajo pesado de calcular todas las medidas para los cortes. Sólo el lado derecho no requieren un corte. Véase el cuadro
Para quitar cualquier curling en el linóleo, puso hacia fuera en otra habitación donde pude dejarla plana durante varios días, que utilicé una regla larga y un marcador lavable agua roja para marcar las líneas de corte. Utilicé unas tijeras de trabajo pesado para hacer los cortes, sin embargo en retrospectiva, un cuchillo de la caja y una almohadilla de corte habría funcionado igual de bien y probablemente hubiera sido menos estresantes en mi mano derecha.
Después de cortar el linóleo, mi respiración, lo llevó al baño y seco para ver si había hecho algún error importante. Afortunadamente, todos mi doble medición había pagado y estaba cerca de perfecto. Encontré un lugar donde una arruga fue empujando hacia arriba el linóleo. Después de un trabajo de detective, encontré que un borde del linóleo fue empujando y causando una arruga en el linóleo. Me pareció que el borde superior del linóleo no muy cuadrado, era de aproximadamente 1/4" de borde a borde. Si no estaba causando una arruga no habría sido un problema. Decidí marcar hasta el cambio en el lugar haciendo rodar el borde detrás en el it de sí mismo y realizando el corte con un cuchillo de la caja, almohadilla de corte y metal cuadrado. (Esto es donde encontré que un cuchillo de la caja fuerte cortar el linóleo muy bien).













