Proyecto de detectores de (7 / 7 paso)

Paso 7: Paso 7

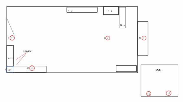
Lugar las unidades múltiples alrededor de un área sospechosa para confirmar una fuente de un proyecto o como yo (no está seguro de los puntos problema exacto - resultados para ser múltiples) utilizan las unidades para baño - grandes círculos de diagrama, rojo que indica las áreas problemáticas.
Una sala un mapa y abordar las cuestiones - te sorprenderás cuanto tarda una vez ponerse en marcha.

Artículos Relacionados

Fuente de gato del Detector de movimiento

Fuente de gato del Detector de movimiento

nuestro gato, Murray, había conseguido en el hábito de preferir beber de un lento goteo en el lavabo del baño.  Esto no siempre era conveniente para nosotros, así que decidí modificar una fuente del animal doméstico.  Después de comprobar varios de e
10 proyectos de breadboard para principiantes

10 proyectos de breadboard para principiantes

Protoboard es una gran manera para construir proyectos electrónicos fácilmente y en menos tiempo sin necesidad de soldadura. Un problema que es enfrentado por los principiantes en el campo de la electrónica es que no se puede soldar los componentes c
Metal Detector de circuito simple

Metal Detector de circuito simple

aquí está otro simple pero muy útil circuito denominado circuito de Detector de Metal. Detector de metales es muy común dispositivo para el control de la persona en centros comerciales, hoteles, salas de cine para asegurar esa persona no lleva metale
Generador de rayos x caseros

Generador de rayos x caseros

Aviso!!!: este proyecto puede ser extremadamente peligroso si no sabes lo que haces, en el caso de este sistema, los rayos x son realmente menos del problema, asumiendo que usted tiene que protegerse con. Sin embargo un transformador flyback puede da
Tester DMX barato

Tester DMX barato

Hola a todos,Trabajo a tiempo parcial (más de un hobby) en la industria de la iluminación y uso DMX es el estándar industrial para comunicación o control de dispositivos (accesorios de iluminación, reguladores, consolas, etc...) He visto comerciales
Terremoto Pi - agite y sacudan su escritorio!

Terremoto Pi - agite y sacudan su escritorio!

ResumenHay un número de proyectos de detector de terremoto de la frambuesa pi. Estos son buenos para cualquier persona que viva en un área propensa a terremotos o para aquellos que quieren tratar de detectar quakes distantes ellos mismos.Este proyect
Proyecto de seguro de iluminación Led Gun: doble color con detector de movimiento

Proyecto de seguro de iluminación Led Gun: doble color con detector de movimiento

hay un montón de grandes LED iluminación guías aquí en Instructables para no perder el tiempo en lo que cubren. Se referencia a algunos en el transcurso de este instructable que pensé fueron buenas como la guía definitiva de acento LED iluminación.Ha
GaussGun / pistola de bobina electrónica e ingeniería de proyectos

GaussGun / pistola de bobina electrónica e ingeniería de proyectos

Me decidí a hacer el Gold Award de la cresta en mi colegio, que es una gran certificación de la Asociación británica de ciencia que da a los estudiantes una oportunidad de ampliar sus conocimientos de ciencia, tecnología, ingeniería y matemáticas med
Detector de metales

Detector de metales

¿Por qué no descubrir la pérdida de los tesoros de civilizaciones pasadas (o bienes tal vez olvidados de una fiesta junto a la playa) con su propio detector de metales? En este Instructable, te voy a mostrar cómo construir un detector de metales que
Detector de contaminación de aire

Detector de contaminación de aire

Este dispositivo está diseñado para proporcionar al usuario un medio costo-eficiente de determinar la calidad del aire. Nuestro sensor se centra en los cinco componentes del índice de calidad de aire de la Agencia de protección ambiental: ozono, part
Prevención de incendios de la casa con el seccionador de Detector de humo

Prevención de incendios de la casa con el seccionador de Detector de humo

Hace casi una década comenzó un incendio mayor. Sí, los accidentes ocurren y a veces un pequeño error puede tener graves consecuencias. Un joven fabricante de perder el tiempo con electricidad puede ser particularmente vulnerable a este tipo de accid
La belleza es solamente piel profundamente - su proyecto como un profesional del paquete

La belleza es solamente piel profundamente - su proyecto como un profesional del paquete

Esto no va a ser uno de su normal Instructables donde os muestro algo que he creado en un protoboard, proporcionar el código fuente, un diagrama, diseño y acabado con una foto del proyecto terminado (generalmente hacinado en una lata Altoids o algún
Red Hum Detector / Detector de electricidad estática

Red Hum Detector / Detector de electricidad estática

Bienvenida,Este instructable es un circuito pequeño y sencillo que detecta red Hum, es decir, que se puede detectar donde se encuentran desde fuera de la pared los cables de red. También detecta electricidad estática y también puede ser disfrazado co
Kit Detector de error de FM

Kit Detector de error de FM

Esto es para todos los espías/paranoico por ahí. Un pedazo esencial de equipo para cualquier spy es un Detector de fallos electrónicos. Nunca se sabe qué gobierno Agencia puede estar intentando escuchar sus conversaciones o tratando de secreto video