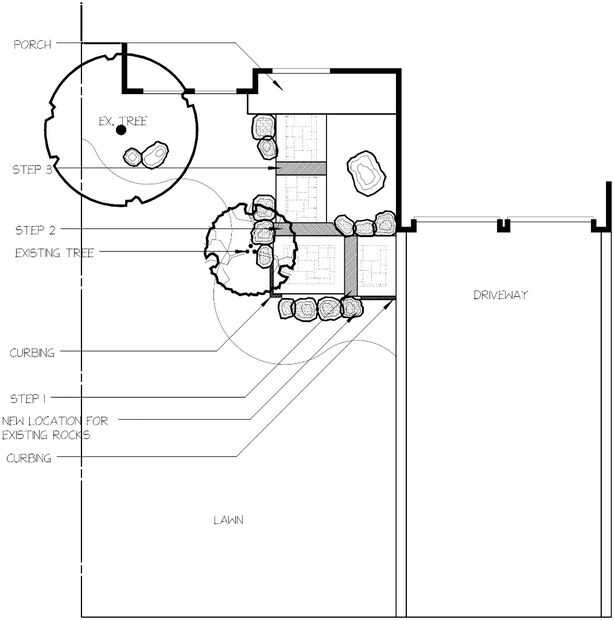
Paso 1: diseño

Es muy importante tener un plan de trabajo. Redacté este en un programa de cad, pero esto puede hacerse fácilmente con la mano en un papel cuadriculado.
Comenzar por la medición de su propiedad y su hogar, incluyendo puertas y ventanas. Extraer de su plan base a escala sobre papel cuadriculado y hacer algunas copias. Ahora comience a trazar lo que desea, asegúrese de hacer unos conceptos diferentes para ver lo que más gusta.
Ahora volver a dibujar su diseño final otra vez a hacer un dibujo de construcción listo que usted puede trabajar desde con medidas para facilitar la construcción.
Recordar las cosas a menudo cambian poco durante la construcción así que cuando usted está construyendo y que desea mover algo unos poquitos hacerle trabajo mejor no preocuparse el plan es una guía que ofrece una dirección general de construcción.
No incluyo las plantas de este instructable porque Instuctables se ve de todo el mundo tendrá que seleccionar las plantas que son especialmente resistentes a su región en particular.