Organizador de cuchilla de corte (5 / 9 paso)

Paso 5: Cuántos agujeros y tipo de agujeros que deben realizarse para colocar la cuchilla y su eje en él.

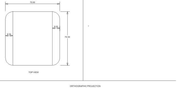
Cuántos agujeros y tipo de agujeros que deben realizarse para colocar la cuchilla y su eje en él.

Antes de que podemos hacer agujeros en cartulina separador que necesitamos definir la longitud y la anchura de la misma.

Del diagrama anterior, es claro que la longitud del espaciador debe al menos ser 7cm-1cm = 6 cm para caber dentro de la caja

y anchura 70mm - 9.5mm-9.5mm-5mm = 46 mm o menos

https://Drive.Google.com/Open?ID=0B8fauY_aIWkhazRB...

Artículos Relacionados

Dremel - cuchilla de corte multiuso penny

Dremel - cuchilla de corte multiuso penny

Este instructable muestra el proceso de hacer su propia cuchilla de todo propósito para una Dremel hace de un centavo.El propósito principal de esta herramienta era cortar el plástico en este flash de luz LED 8000 luz instructable que puede verse aqu
Calienta la cuchilla de corte de la cuerda

Calienta la cuchilla de corte de la cuerda

me cansé de tener que cortar un trozo de cuerda luego con un encendedor para sellar los extremos. Sé que se pueden comprar las láminas climatizadas pero son de £45-£50. Así que decidí hacer mi propio, recogí un soldador de bastante barato y cabeza de
Organizador de tapa pyrex

Organizador de tapa pyrex

Los recipientes de cristal de Pyrex que utilizo para muchas de mis recetas Instructable almacenan muy bien. Anidan en pilas ordenadas, seis de altura en mi armario. Por otro lado, sus tapas son apenas controlables. No bien la pila y dispersión como m
Corte biselado cuchillo de pan

Corte biselado cuchillo de pan

En este instructable, te enseñamos cómo hacer el cuchillo de plástico dentada muy propia de pan con un cortador láser! Usted podría preguntarse, ¿por qué molestarse? Bueno, en el desarrollo de algunas cosas aquí en el Fremont Laser y diseño, hemos de
Plantilla de corte simple botella

Plantilla de corte simple botella

Cortar botellas de vidrio a menudo puede ser una tarea frustrante, especialmente si la línea en la botella no es perfectamente recta. Por esta razón, voy a mostrar cómo hacer una plantilla de corte botella de vidrio simple de madera que es muy versát
Agujero de ocultación enchufes corte trineo para el Kreg Jig

Agujero de ocultación enchufes corte trineo para el Kreg Jig

agujeros tapa corte trineo para el Kreg JigDerecho,Yo estaba buscando una manera barata o alternativa de completar mis accesorios de Kreg Jig.Kreg Jig plataforma de trabajoAsí que después de construir mi plataforma de trabajo de Kreg Jig, que se pued
Máquina de silueta - 3 maneras con 1 imagen de archivo de corte

Máquina de silueta - 3 maneras con 1 imagen de archivo de corte

Como un crafter de papel ávido siempre estoy en buscando frescos nuevas herramientas y técnicas para la creación de tarjetas. Las máquinas de silueta ofrecen un montón de opciones para proyectos que no máquinas de corte de troquel manual tradicional.
No derrame nada organizador

No derrame nada organizador

estoy interesado en un montón de manualidades. Por lo tanto acumular varias herramientas; y luego, a veces... cuando realmente necesito una herramienta especial... No puedo encontrarlo!! y aunque sé que es en este particular bolso... para encontrar l
Apliques de corte con el retrato de la silueta

Apliques de corte con el retrato de la silueta

He sido un quilter durante muchos años. Me encanta el look de los diseños de apliques, pero odio el tiempo que lleva hacer todo el trabajo de la mano que oculta los bordes crudos de la tela. 6 hace unos años, he descubierto MistyFuse™, una web fusibl
Cómo hacer un medidor de corte

Cómo hacer un medidor de corte

Paso 1: materiales Fuentes:1 "x 2" x 24" tablero roble rojo (área de arte/hobby) - $2,24Tornillo moleteado - $0,92Tuerca insertable a leña - $1,24Pack Junior 5 de hojas de sierra para metales - 2.881/4 barra de espiga (opcional si tienes un
Corte de silueta espectrómetro móvil laboratorio público

Corte de silueta espectrómetro móvil laboratorio público

Yo soy un fan de espectrómetros. Estos instrumentos se utilizan en la industria y la ciencia para averiguar acerca de composiciones y de cosas (líquidos, estrellas, leds, tubos fluorescentes compactos) a través de la luz que emiten o absorben. Típica
Molino de viento - 3D impreso, corte del Laser

Molino de viento - 3D impreso, corte del Laser

Hey-si usted tiene un fácil acceso a un cortador del laser y una impresora 3D, este proyecto permitirá construir una pequeña turbina de viento en menos de 45'. Un simple motor de corriente continua se utiliza para generar electricidad. El soporte par
Corte y tubo de acero del hilo de rosca

Corte y tubo de acero del hilo de rosca

Enhebrado y corte de tubos de acero es fácil. Usted debe saber cómo para cualquier gas, de aire o tuberías de vapor.Paso 1: Materiales y herramientasMateriales:Pipa de aceroAceite de roscarLubricante de tuberíaConexiones de aceroHerramientas:Kit de r
Cómo hacer una espada de acolchado (con una cuchilla plana)

Cómo hacer una espada de acolchado (con una cuchilla plana)

Ok, este es mi primer instructivo, así que paciencia.Hay un montón de tutoriales en línea sobre la fabricación de armas de PVC y un montón de buenos en eso. El problema que he tenido con la mayoría de ellos es que usted termina con más de un club que