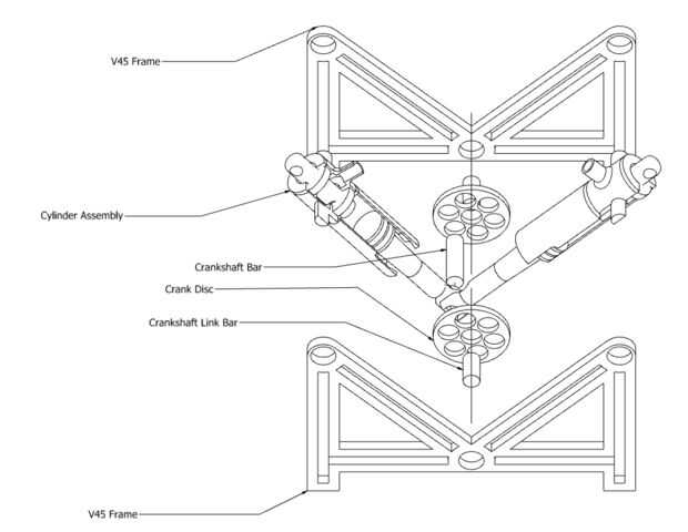
Paso 4: Montaje del cigüeñal y el marco

A continuación, podemos construir el resto de la estructura. Después de edificio dos de los cilindros, montar el cigüeñal como se muestra arriba pegando los discos inestables, barra biela y manivela unir barras. Los dos cilindros se resbalaron entonces encima de la media del cigüeñal y los dos cuadros de V45 son ranurados hasta el final.
Sean las barras cortas de 15mm en los extremos como podrían agregar más componentes en una fecha posterior
Con suerte, al hacer girar el cigüeñal, los dos pistones deben moverse juntos. Se recomienda en esta etapa a imprimir su propio volante o un peso pequeño desvío a la biela del pegamento para dar impulso.