Paso 1: El proyecto

1. el proyecto
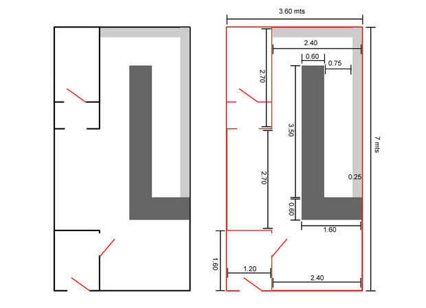
Medimos el local para ver la ubicación de la barra.
Tienda mide 3,60 metros de ancho y 7 metros de largo
Compruebe las medidas correctas y calcular el espacio para usted y la persona que sirve a los clientes.
Concluimos que la barra tenga 4,10 metros de largo y 1.60 metros de ancho. ser de 0,75 cm para desplazarse dentro de la barra y barra 0,60.