Paso 3: Preparar la base

1.) uso (voluntad ser utilizarlo para lotes pequeños de productos químicos o grandes lotes).
2.) área disponible (donde se se almacenar y usarlo)
3.) costo (costo variará con el tamaño... generalmente cuanto mayor sea la máquina, más cuesta.)
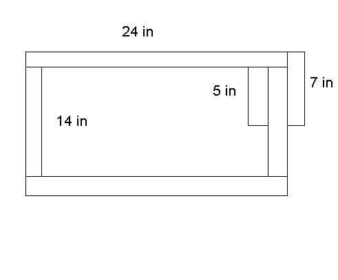
Para esta aplicación que haciendo las dimensiones 2 pies de ancho por 1,5 pies de largo.
1.) corte dos piezas 2 pies de largo y dos piezas 1' 2" largo.
2.) corte un trozo de 5 largo y otra de 7 pulgadas de largo
3.) tornillo utilizando la guía que se muestra			












