Paso 2: cortar






3/4" de madera:
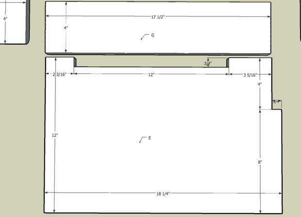
17 1/2" por 21 1/4"
B 22" por 12"
C 11 1/4" por 12" (Nota: esta pieza también puede ser 1/2" madera. Otras dimensiones quedan igual)
D 11 1/4" por 1/4 de 17" (esta pieza también puede ser 1/2". Si C y D son 1/2, esto debe medir 11,25" 17,5")
E 12" por 18 1/4"
F 4" por 4"
G 4" por 17 1/2"
H 12" por 4"
I 26" por 20"
A & E se pueden cortar fácilmente con una sierra de calar, no importa tanto si la línea es un poco tambaleante ya que estos cortes son invisibles y no necesitan estar perfectamente niveladas. También corté el agujero de la "I" con una sierra de vaivén que no es lo ideal: no importa cómo te esfuerces no se obtendrá un borde perfectamente recto. L también deben ser lo más recto posible. Si tuviera que rehacer la tabla hoy quisiera usar una sierra circular de mano y luego terminar las esquinas con la sierra caladora. Otra ventaja es que se podría utilizar el recorte de "I" para que "M"
Otra vez usé una sierra caladora para hacer las esquinas redondeadas de la B, I y L, luego usé mi lijadora para alisar hacia fuera. Básicamente lo hice a ojo, muy poco profesional que conozco. La curva comienza aproximadamente 2" de la esquina. Los bordes redondeados de H, I, L estuviera hecho con mi lijadora: lento, aburrido, sucio trabajo que realmente se debería haber hecho con un router. En este dibujo he dado F un borde redondeado, aunque lo no construyo esa manera en mi prototipo. (Nota: yo no dibujó algunos de los bordes redondeados en mi modelo en 3D porque pensé que sería más fácil ver las dimensiones sin las curvas, puedes verlas fotos del prototipo)
1/8" espejo del plexiglás:
J 12" por 12"
K 18 1/8" por 12"
Barras cuadradas.
Estos pueden ser 1" por 1" madera o chatarra sólo pedazos de 3/4" plyboo. Puede tener 3 o 4 de ellos (dependiendo de cómo desea formar C y D) y todos deben ser 11 1/4" largo