Paso 3: Corte-lista

Lo primero es primero.
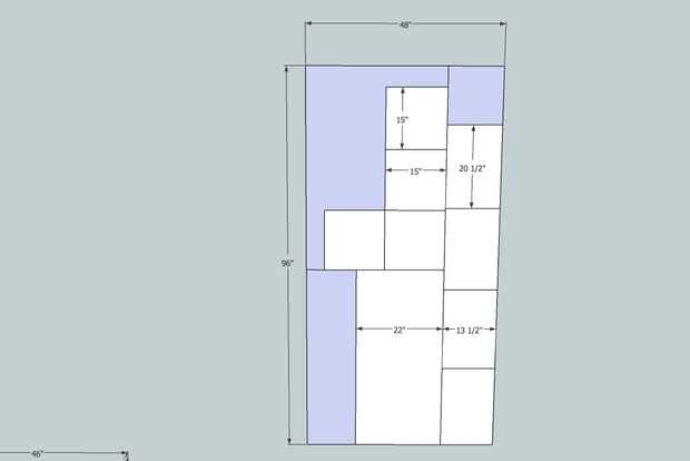
La mayoría de esta se construirá de madera contrachapada de abedul de 3/4". Que viene en hojas de 48 "x 96".
Esencialmente hace tres cadáveres y luego atornillado a la parte inferior y luego uno al otro.
Lay out su Rip las primeras entonces su cruz cortes. Hay algunos programas que harán esto por usted, pero ¿Dónde está la diversión en eso?
Como se puede ver las piezas para esta compilación hacen un extraño conjunto de cortes. Tuve que rasgar luego Cruz corte luego rasgar algunas más.