Paso 2: Construcción de los lados





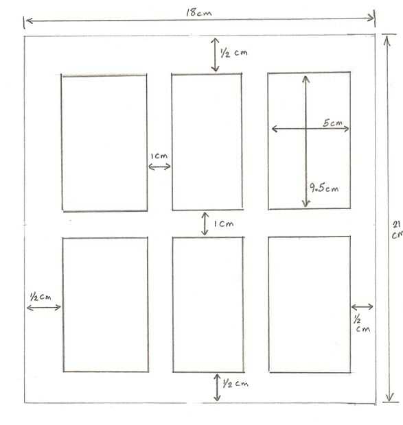
Una vez tuve mi hoja tuve que trabajar en las dimensiones de los detalles de la puerta (paneles y ventanas). Midió la altura (103.5 cm) y ancho (64 cm) y luego trabajó dimensiones para hacer los ocho paneles de igual tamaño. Las ventanas cuentan como paneles como sus dimensiones son las mismas que un panel.
Ver la imagen a las dimensiones de mi Tardis.
Con la cantidad de corte que será único recomienda conseguir usted mismo un pack de cuchillas nuevas. Cambio de las hojas a menudo hace que el corte más suave y las manos te lo agradecerán cuando termines. Utilicé una regla metálica y una almohadilla de corte con el fin de salvar mi piso.
Usé el primer panel que corte como una plantilla recortar tres lados más. En el cuadro del diagrama sólo tiene las dimensiones de un lado de la hoja de cartón, pero ambos medio de son las mismas dimensiones. No corte la hoja que ha seleccionado para ser la puerta de entrada en medio. Es necesario mantener esto como una hoja sólida por el momento.













