Marco de arte (1 / 3 paso)

Paso 1: Corta lista.

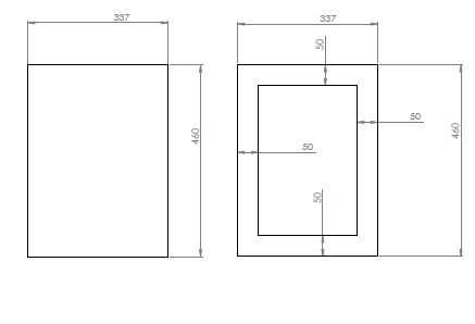
Quería hacerlo para sostener una hoja A3 es de 297 x 420 mm. También quería estar un ajuste exacto que tendrá que sostener la obra de arte en su lugar, razón por la cual las dimensiones son exactas.

1 hoja de madera contrachapada de 1220 mm x 607 mm 9mm de espesor.

  1. X1 frente - 337 mm x 460 mm con un anillo de 50 mm de la ventana.
  2. X1 nuevo - 337 mm x 460 mm.
  3. X6 corredores - 20 x 150 mm.

Artículos Relacionados

Colegio digno marco de arte

Colegio digno marco de arte

Este marco de arte es instrucciones para saber cómo crear un marco de arte para una obra de arte de ArtRobot. Utiliza objetos simples utilizados en el hogar con el fin de crear un marco digno de una casa universitaria o estudiante.Paso 1: Reunir los
Cómo hacer un marco de arte

Cómo hacer un marco de arte

¡ Hola!Esto es un básico para un marco de arte de DIY, que tiene un efecto 3D. Este proceso funciona para la mayoría delgada a semi gruesas piezas de madera que se puede encontrar en su tienda local de arte y artesanía.Tabla de contenidoPaso 1: aprop
Tablón de anuncios marco DIY | Arte de dar

Tablón de anuncios marco DIY | Arte de dar

¡Hola!Esto es tan divertido y práctico pequeño proyecto DIY! Todo lo que necesita es un marco de fotos en el tamaño de su elección, algunos posavasos de tablero de corcho (hojas de tamaño A4 o de material del tablero del corcho) caliente pegamento pe
Fácil caliente pistola de pegamento Mini foto marco collar | Arte de dar

Fácil caliente pistola de pegamento Mini foto marco collar | Arte de dar

¡Hola!Qué una manera fresca para capturar tus recuerdos atesorados. O hacer algo especial para alguien especial con tu pistola de pegamento caliente!No olvides ser astuto con su entrega.Gracias por mirar,DANRIE de arte de dar xxx_____________________
DIY: Conchas marinas verano marco de arte

DIY: Conchas marinas verano marco de arte

Se necesita...Marco de laPinturaPinturas, pincelesLápizPapelPapel de ScrapbookTijerasPegamentoPasos:1. Tome el vidrio del marco y poner en la parte posterior del papel de scrapbook y traza alrededor de él.2. hacer lo mismo con la cartulina comprarlo
Cómo construir un marco de balsa de río

Cómo construir un marco de balsa de río

¿por qué gastar el dinero en un marco de balsa? Puede ahorrar mucho dinero y construir un marco comparable con tantas opciones como usted desea! El costo fue de $340 y un marco comparable está sobre $500. El peso no mucho más.Paso 1: Material necesar
Arte con corazón - arena pintura Lisa Fulmer para los productos ACTIVA

Arte con corazón - arena pintura Lisa Fulmer para los productos ACTIVA

Pintura de arena es una bella forma de arte con raíces profundas en la historia del mundo – desde el arte aborigen de Australia arena antigua, a los impermanentes y meditativos tibetanos arena mandalas, a las pinturas de arena ceremoniales indígenas
TELAS de forjado: Cómo hacer telas de alta gama especiales para alta costura, arte textil, tapices y diseño de moda

TELAS de forjado: Cómo hacer telas de alta gama especiales para alta costura, arte textil, tapices y diseño de moda

TELAS de forjado: Cómo hacer gama alta especialidad tejidos para alta costura, arte textil, tapices, diseño de moda y más!Me da tanta inspiración de materiales.Cuando veo un material que me consigue excitado, mis carreras de mente con ideas de lo que
Decoración hogar bricolaje, con papel Quilling arte: Sorprendente decoración DIY habitación con Ave Quilling patrón

Decoración hogar bricolaje, con papel Quilling arte: Sorprendente decoración DIY habitación con Ave Quilling patrón

Quilling arte y encañonado craft ideas últimamente también han sido un favorito entre los niños como un proyecto de arte quilling fácil para los niños, toma menos tiempo y produce resultados rápidos y coloridos.Quilling patrones y diseños de quilling
Arte colorido fácil

Arte colorido fácil

Convertir tus colores favoritos en el corte y pegar formas para crear arte colorido para tu hogar!Paso 1: Descubre lo fácil que es hacer aquí!Paso 2: Cosas que necesitaráLustre de Maxx de decoración americanaMarcos blancoCartulinaAdhesivo en aerosol
CD rota ART FRAME

CD rota ART FRAME

Este instructable es enseñarle a marco ilustración con trozos de CDs. Si se hace correctamente, el resultado final se verá como la foto.Para comenzar será necesario:Gafas de seguridadCD ' s que está dispuestos a romperTijerasCemento de gomaLlaveroCin
Arte ágil ladrón (julio)

Arte ágil ladrón (julio)

es cierto que se trata de un proyecto de dorky, cojo y ridículo y construido puramente para diversión y estética, a la que soy adicto. De hecho, me puedo imaginar a nadie pero me quieren hacer esta cosa, pero...Dicho esto, me encanta circuitos Snap -
Arena arte automatica

Arena arte automatica

tuve un cuadro de arte de arena que había que voltear a hacer fluir una mezcla de arena y de agua entre dos placas de vidrio. El problema es que si no lo haces muy a menudo la arena se endurece. He decidido automatizar un poco girando cada vez que al
Proyectos para niños: Cómo hacer un DIY 8 señaló la estrella Ninja

Proyectos para niños: Cómo hacer un DIY 8 señaló la estrella Ninja

Compañeros amantes Instructable! Yo traigo para ti un extraordinario Modelo de papel de Origami arte y aprender Cómo hacer una estrella Ninja puntas de bricolaje 8. Una idea de arte papel absolutamente fácil para los niños, para hacer, este Origami M