Paso 3: Comenzar a construir








Como segundo paso tienes que construir la vivienda para su máquina de la garra. Le ayudará a diseñar los diferentes paneles en primer lugar.
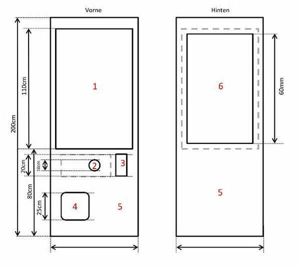
Ahora sólo tienes que recortar las formas de los cuatro lados de la máquina: la parte delantera, izquierda y derecha son lo mismo, espera de la salida de precio en la parte delantera y la puerta de la derecha para la electrónica.
Ahora tienes que juntar los paneles de madera. Usé algunos listones de madera en el que perforó los paneles.
Para el tema de precio que necesita el pequeño bosque que simplemente corta y añade una bisagra para que pueda abrir y cerrar.
Una cosa más complicada es construir el eje donde los precios caen en. Tienes que ser creativo, ser libre y dejar que inspirarse de los cuadros.